Archiwum ofert nieruchomości
Status: Archiwalna
Lokalizacja: Mysłowice, ul. Jaworowa
Powierzchnia: 0,1542 ha
Lokalizacja: Mysłowice, ul. Jaworowa
Powierzchnia: 0,1542 ha
Informacja o niezabudowanym terenie o pow. 0,1542 ha, przygotowywanym do zbycia na cele produkcyjno - usługowe
-
Położenie
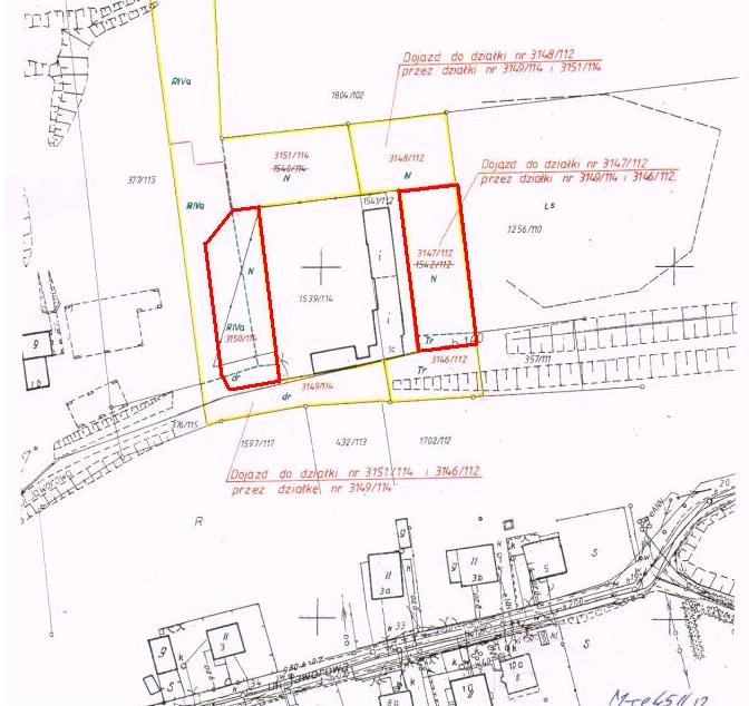
- Nieruchomość położona w Mysłowicach – Brzezince przy ulicy Jaworowej, niezabudowana
- Adres: 41 - 404 Mysłowice, ul. Jaworowa.
- W skład nieruchomości wchodzi grunt obejmujący działkę nr 3147/112 o pow. 782 m2 i działkę nr 3150/114 o pow. 760 m2, na karcie mapy 3 obrębu Brzezinka, zapisane w KW KA1L/00021504/9 Sądu Rejonowego w Mysłowicach.
-
Charakterystyka nieruchomości
- Właścicielem nieruchomości jest Gmina Mysłowice.
- Łączna powierzchnia nieruchomości wynosi 0,1542 ha
-
Przeznaczenie w miejscowym planie zagospodarowania przestrzennego miasta: zgodnie z zapisem zmian miejscowego planu zagospodarowania przestrzennego miasta Mysłowice z dnia 14.11.2003 r. Nr XVII/198/2003 oraz zmiany fragmentów miejscowego planu zagospodarowania przestrzennego Gminy Mysłowice na podstawie uchwały Nr XII/146/99 z dnia 30.06.1999 r. teren posiada przeznaczenie oznaczone symbolem
PU – wielofunkcyjna strefa produkcyjno - usługowa
- Przedmiotowe działki są niezabudowane, położone na południe od centrum miasta w dzielnicy Brzezinka. Ich powierzchnia jest równa, porośnięta trawą i wysoką zielenią. W otoczeniu działek znajdują się zakłady kamieniarskie, występuje zabudowa mieszkaniowa jednorodzinna oraz tereny zalesione i zadrzewione. Na działce nr 3150/114 usytuowany jest płot z siatki metalowej właścicieli posesji przylegającej do tej działki, oznaczonej nr 1c.
- Dojazd komunikacją zbiorową: autobusami linii KZK GOP Nr 76, Nr 106, 162, Nr 219 i Nr 788 do przystanku Larysz Storczyków, a następnie pieszo ulicą Marii Konopnickiej do ulicy Jaworowej.
- Uzbrojenie - w pasie drogi gminnej ulicy Jaworowej przebiegają sieci: wodociągowa, kanalizacyjna, energetyczna, gazowa i teletechniczna.
-
Sposób zagospodarowania
Na działkach zrealizować można będzie inwestycje zgodne z kierunkiem ich przeznaczenia. Zagospodarowanie terenu wielofunkcyjną zabudową produkcyjno – usługową może nastąpić do 2-3 kondygnacji, a około 25% powierzchni działek winno zostać przeznaczone na zieleń urządzoną. W zależności od rodzaju zamierzenia inwestycyjnego z obszaru produkcyjno – usługowego może zaistnieć konieczność uzyskania decyzji o środowiskowych uwarunkowaniach zgody na realizację planowanej inwestycji. Nabywca zobowiązany będzie własnym staraniem i na własny koszt wykonać niezbędne dla zamierzonej inwestycji uzbrojenie techniczne oraz zapewnić dostawę mediów, a także w razie takiej konieczności dokonać wycinki zieleni. Obsługa komunikacyjna nieruchomości odbywać się będzie z ulicy Jaworowej tj. dla działki nr 3147/114 poprzez działki nr 3149/114 i nr 3146/112, a dla działki nr 3150/114 poprzez działkę nr 3149/114. -
Tryb zbycia.
Ustny przetarg nieograniczony.
Szczegółowych informacji dotyczących zbywanych nieruchomości udziela:
Wydział Gospodarki Nieruchomościami i Nadzoru Właścicielskiego
Urzędu Miasta w Mysłowicach
e-mail: um@myslowice.pl
tel. 32 317 12 36
a informację o możliwości zabudowy tego terenu można uzyskać w
Wydziale Architektury i Budownictwa
Urzędu Miasta w Mysłowicach
tel. 32 317 13 24
Zdjęcia:









