Archiwum ofert nieruchomości
Status: Archiwalna
Lokalizacja: Mysłowice, ul. Kazimierza Tetmajera
Powierzchnia: 0,0274 ha
Lokalizacja: Mysłowice, ul. Kazimierza Tetmajera
Powierzchnia: 0,0274 ha
Informacja o niezabudowanym terenie o pow. 0,0274 ha, przygotowywanym do zbycia na cele usługowe lub mieszkaniowo - usługowe.
-
Położenie
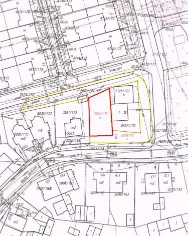
- Nieruchomość położona w Mysłowicach przy ulicy Wielkiej Skotnicy i Kazimierza Tetmajera, niezabudowana
- Adres: 41 - 400 Mysłowice, ul. Kazimierza Tetmajera.
- W skład nieruchomości wchodzi grunt obejmujący działkę nr 9092/173 o pow. 274 m2, na karcie mapy 3 obrębu Mysłowice, zapisana w KW KA1L/00017760/0 Sądu Rejonowego w Mysłowicach.
-
Charakterystyka nieruchomości
- Właścicielem nieruchomości jest Gmina Mysłowice.
- Łączna powierzchnia nieruchomości wynosi 0,0274 ha,
-
Przeznaczenie w miejscowym planie zagospodarowania przestrzennego miasta: teren nie posiada pokrycia planem miejscowym, w Studium Uwarunkowań i Kierunków Zagospodarowania Przestrzennego Miasta Mysłowice zatwierdzonym przez Radę Miasta Mysłowice uchwałą Nr XXX/656/08 z dnia 30 października 2008 r. nieruchomość posiada przeznaczenie:
MN – tereny zabudowy jednorodzinnej
- Przedmiotowa działka jest niezabudowana, położona w centrum miasta, lekko nachylona w kierunku południowym. W sąsiedztwie znajduje się zabudowa mieszkaniowa jednorodzinna oraz obiekty budynków usługowo - handlowych (bar „Alusia”, sklep „Lewiatan”), a także osiedle mieszkaniowe. W części północnej nieruchomości usytuowane jest szambo. Obsługa komunikacyjna nieruchomości odbywać się będzie z drogi publicznej ulicy Kazimierza Tetmajera.
- Dojazd komunikacją zbiorową: autobusami linii KZK GOP Nr 44, Nr 162 i Nr 292 do przystanku Bończyk Jastruna.
- Uzbrojenie - w północnej części gruntu w pasie drogi gminnej ulicy Kazimierza Tetmajera przebiegają sieci: wodociągowa, kanalizacyjna deszczowa i sanitarna, energetyczna, gazowa i teletechniczna oraz w części południowej nieruchomości w pasie drogi gminnej ulicy Wielkiej Skotnicy sieć wodociągowa, kanalizacyjna, gazowa i teletechniczna.
-
Sposób zagospodarowania
Zagospodarowanie terenu nastąpi na podstawie szczegółowych warunków, które zostaną określone w decyzji o warunkach zabudowy, wydanej na wniosek nabywcy. Na nieruchomości zrealizować można inwestycje z przeznaczeniem na cele usługowe lub usługowo – mieszkaniowe. Inwestor zobowiązany będzie własnym staraniem i na własny koszt wykonać niezbędne dla zamierzonej inwestycji uzbrojenie techniczne oraz zapewnić dostawę mediów. -
Tryb zbycia.
Ustny przetarg nieograniczony.
Szczegółowych informacji dotyczących zbywanych nieruchomości udziela:
Wydział Gospodarki Nieruchomościami i Nadzoru Właścicielskiego
Urzędu Miasta w Mysłowicach
e-mail: um@myslowice.pl
tel. 32 317 12 36
a informację o możliwości zabudowy tego terenu można uzyskać w
Wydziale Architektury i Budownictwa
Urzędu Miasta w Mysłowicach
tel. 32 317 13 24
Zdjęcia:









