Archiwum ofert nieruchomości
Status: Archiwalny
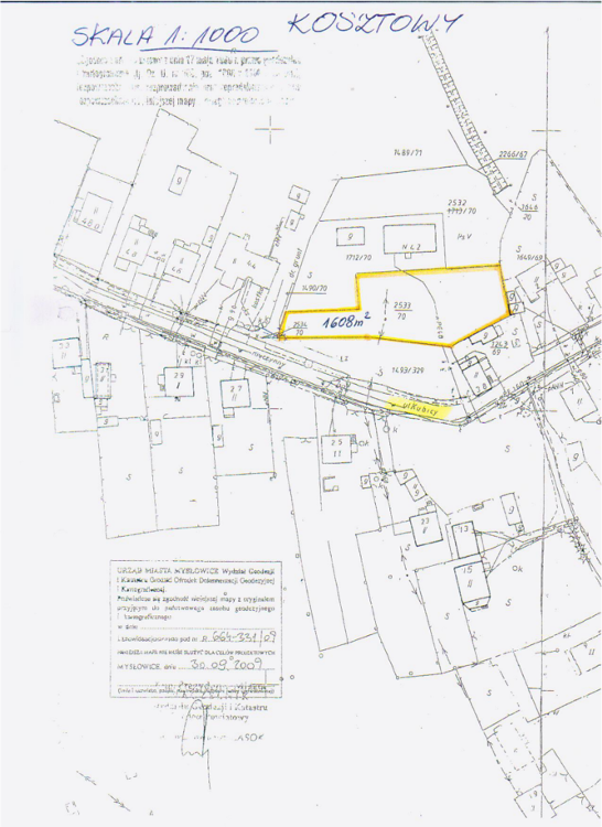
Lokalizacja: Mysłowice, ul. Kubicy
Powierzchnia: 1.608 m2
Lokalizacja: Mysłowice, ul. Kubicy
Powierzchnia: 1.608 m2
Informacja o terenie niezabudowanym, przygotowanym do zbycia pod zabudowę mieszkaniową jednorodzinną.
-
Położenie
- Nieruchomość niezabudowana, położona w Mysłowicach - Kosztowach przy ul. Kubicy za Nr 38.
- Adres: 41 - 409 Mysłowice, ul. Kubicy.
- W skład nieruchomości wchodzi działka nr 2533/70 o pow. 1.608 m2, na karcie mapy 3 obrębu Kosztowy, zapisana w księdze wieczystej KW 26501 Sądu Rejonowego w Mysłowicach, z przeznaczeniem pod zabudowę mieszkaniową jednorodzinną.
-
Charakterystyka działki
- Właścicielem nieruchomości jest Gmina Miasto Mysłowice.
- Łączna powierzchnia nieruchomości wynosi 1.608 m2
-
Brak miejscowego planu zagospodarowania przestrzennego miasta. W Studium Uwarunkowań i Kierunków Zagospodarowania Przestrzennego Miasta Mysłowice, uchwalonym przez Radę Miasta Mysłowice uchwałą Nr XXX/656/08 z dnia 30 października 2008r. w/w działka określona została jako: MN - tereny zabudowy jednorodzinnej.
Zagospodarowanie terenu nastąpi na podstawie szczegółowych warunków, które zostaną określone na wniosek nabywcy w decyzji o warunkach zabudowy. - Dojazd komunikacją indywidualną: ul. Kubicy.
- Dojazd komunikacją zbiorową: autobusami linii KZK GOP Nr 35, Nr 66, Nr 77, Nr 149, Nr 223, Nr 931, Nr 995 do ul. Kosztowskiej.
- Uzbrojenie - rejon nieruchomości uzbrojony jest w sieci: energetyczną, gazową, wodociągową i kanalizacji sanitarnej (w budowie - przy ul. Kubicy).
-
Sposób zagospodarowania
Charakterystyka: Działka niezabudowana położona przy ul. Kubicy w drugiej linii zabudowy, posiada kształt nieregularny, w części porośnięta jest zielenią wysoką. Dojazd do zbywanej działki nr 2533/70 będzie się odbywać od zachodniej części nin. działki, po działkach gminnych nr: 2534/70 1490/70 i 1492/329 (drogą gruntową). Przez działkę nr 2533/70 przebiega napowietrzna sieć energetyczna, podziemna sieć wodociągowa PE 40, na działce tej znajduje się także słup energetyczny. Nieruchomość może być wykorzystana pod zabudowę mieszkaniową jednorodzinną z zastrzeżeniem, że projektowany obiekt budowlany nie może naruszać istniejącego uzbrojenia podziemnego i nadziemnego terenu i przy jego lokalizacji zostaną zachowane odpowiednie odległości od sieci. W przypadku gdyby jednak projektowana zabudowała kolidowała z przebiegającymi sieciami, nabywca zobowiązany będzie na własny koszt dokonać przełożenia sieci, po uzgodnieniu z ich gestorami, zobowiązany również będzie zapewnić właścicielom sieci dostęp do sieci, celem przeprowadzenia konserwacji lub usunięcia awarii. Ponadto nabywca zobowiązany będzie we własnym zakresie i na własny koszt:- W razie konieczności dokonać wycinki zieleni, po wcześniejszym uzyskaniu decyzji zezwalającej na usunięcie drzew i krzewów kolidujących z inwestycją (ewentualne opłaty z tym związane ponosi nabywca);
- Zrealizować niezbędne dla zamierzonej inwestycji uzbrojenie techniczne i uzyskać we własnym zakresie zapewnienia dostawy mediów oraz rozwiązać sposób odprowadzania i odbioru ścieków, a także wód opadowych;
- Wykonać badanie geotechniczne gruntu;
- W razie konieczności wykonać dojazd do działki nabytej w przetargu.
-
Tryb zbycia.
Przetarg ustny nieograniczony na sprzedaż działki.
W przypadku zainteresowania nabyciem przedmiotowej działki szczegółowych informacji udziela
Wydział Gospodarki Nieruchomościami
Urzędu Miasta w Mysłowicach
tel. 32 317 12 36
e-mail: um@myslowice.pl
Zdjęcia:









