Archiwum ofert nieruchomości
Status: Archiwalna
Lokalizacja: Mysłowice, ul. Laryska
Powierzchnia: 9,708 m2
Lokalizacja: Mysłowice, ul. Laryska
Powierzchnia: 9,708 m2
Informacja o terenie niezabudowanym, przygotowanym do zbycia pod budownictwo mieszkaniowe jednorodzinne w zabudowie wolnostojącej.
-
Położenie
- Nieruchomość niezabudowana, położona w Mysłowicach - Laryszu w rejonie ulic: Laryskiej-Cichej-Wiejskiej.
- Adres: 41 - 404 Mysłowice, ul. Laryska.
-
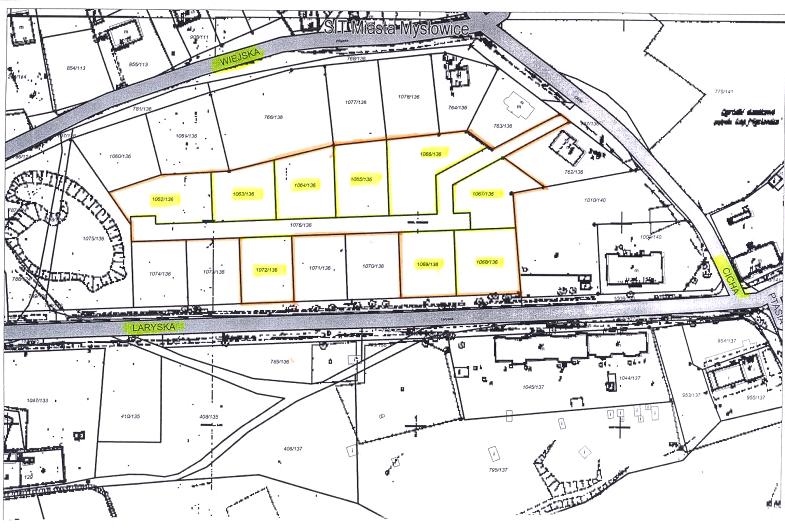
W skład nieruchomości wchodzą działki, na karcie mapy 1C obrębu Brzezinka, zapisane w księdze wieczystej KW 11094 Sądu Rejonowego, przeznaczone pod budownictwo mieszkaniowe jednorodzinne w zabudowie wolnostojącej, oznaczone numerami:
- nr 1067/136 o pow. 887 m2
- nr 1068/136 o pow. 984 m2
- nr 1069/136 o pow. 864 m2
- nr 1072/136 o pow. 816 m2
- nr 1062/136 o pow. 959 m2
- nr 1063/136 o pow. 801 m2
- nr 1064/136 o pow. 922 m2
- nr 1065/136 o pow. 927 m2
- nr 1066/136 o pow. 1.208 m2
- oraz udział w działce nr 1076/136 o pow. 1.936 m2 przeznaczonej pod wewnętrzną drogę dojazdową, zapisanej obecnie w księdze wieczystej KW 38551.
-
Charakterystyka działki
- Właścicielem nieruchomości jest Gmina Miasto Mysłowice.
- Łączna powierzchnia nieruchomości wynosi ok. 9,708 m2
-
Przeznaczenie w miejscowym planie zagospodarowania przestrzennego dzielnicy "MORGI ZACHÓD" w Mysłowicach:
MU II - tereny zabudowy jednorodzinnej z dopuszczeniem funkcji usługowej, jako funkcji uzupełniającej. - Dojazd komunikacją indywidualną: ul. Laryską, Cichą, Wiejską.
- Dojazd komunikacją zbiorową: autobusami linii KZK GOP Nr 44, Nr 76, Nr 106, Nr 266, Nr 788.
- Uzbrojenie - rejon nieruchomości uzbrojony jest w sieci: wodociągową, gazową, energetyczną, teletechniczną i kanalizacji sanitarnej (w budowie - przy ul. Laryskiej).
-
Sposób zagospodarowania
Charakterystyka: Działki niezabudowane, winny być wykorzystane pod zabudowę mieszkaniową jednorodzinną, zgodnie z zapisami miejscowego planu zagospodarowania przestrzennego dzielnicy "Morgi Zachód" w Mysłowicach. Obsługa komunikacyjna zbywanych działek winna się odbywać od ul. Cichej poprzez działkę nr 1076/136, przeznaczoną pod wewnętrzną drogę dojazdową. Przez działki nr: 1068/136, 1069/136, 1072/136, przebiegają dwa kable teletechniczne podziemne, a przez działkę nr 1068/136 dodatkowo kabel energetyczny, który przebiega również w pobliżu południowej granicy pozostałych w/w działek. Przedmiotowe działki mogą być wykorzystane pod zabudowę z zastrzeżeniem, że projektowane obiekty budowlane nie mogą naruszać istniejącego uzbrojenia podziemnego terenu i przy jego lokalizacji zostaną zachowane odpowiednie odległości od sieci. W przypadku, gdyby jednak projektowana zabudowa kolidowała z przebiegającymi sieciami, nabywcy w/w działek zobowiązani będą na własny koszt dokonać przełożenia sieci, po uzgodnieniu z ich gestorami, zobowiązani również będą zapewnić właścicielom sieci dostęp do sieci, celem przeprowadzenia konserwacji lub usunięcia awarii. Ponadto nabywcy zobowiązani będą we własnym zakresie i na własny koszt:- W razie konieczności dokonać wycinki zieleni, po wcześniejszym uzyskaniu decyzji zezwalającej na usunięcie drzew i krzewów kolidujących z inwestycją (ewentualne opłaty z tym związane ponosi nabywca);
- Zrealizować niezbędne dla zamierzonej inwestycji uzbrojenie techniczne i uzyskać we własnym zakresie zapewnienia dostawy mediów oraz rozwiązać sposób odprowadzania i odbioru ścieków, a także wód opadowych;
- Wykonać badanie geotechniczne gruntu;
- Wspólnie z pozostałymi współwłaścicielami działki nr 1076/136 o pow. 1.936 m2, wykonać wewnętrzną drogę dojazdową na tej działce, do działek nabytych w przetargu.
-
Tryb zbycia.
Przetarg ustny nieograniczony na sprzedaż poszczególnych działek wraz z udziałem 1/13 cz. w działce nr 1076/136 przeznaczonej pod wewnętrzną drogę dojazdową.
W przypadku zainteresowania nabyciem przedmiotowych działek szczegółowych informacji udziela
Wydział Gospodarki Nieruchomościami i Nadzoru Właścicielskiego
Urzędu Miasta w Mysłowicach
tel. 32 317 12 36
e-mail: um@myslowice.pl
Zdjęcia:









