Archiwum ofert nieruchomości
Status: Archiwalna
Lokalizacja: Mysłowice, ul. Dolna
Powierzchnia: 14.667 m2
Lokalizacja: Mysłowice, ul. Dolna
Powierzchnia: 14.667 m2
Informacja o terenie niezabudowanym przygotowanym do zbycia, z przeznaczeniem pod zabudowę mieszkaniową jednorodzinną z możliwością wprowadzenia zabudowy na cele związane z działalnością gospodarczą (nieuciążliwą).
-
Położenie
- Nieruchomość niezabudowana, położona w Mysłowicach - Brzezince przy ul. Dolnej.
- Adres: 41-404 Mysłowice, ul. Dolna.
-
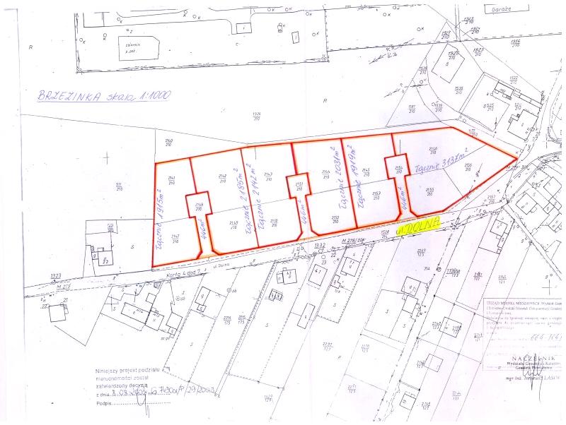
W skład nieruchomości wchodzą działki, na karcie mapy 4 dod. 7 obrębu Brzezinka, zapisane w księdze wieczystej KW 24523 Sądu Rejonowego w Mysłowicach, oznaczone:
- nr 2147/210 o pow. 913 m2 i nr 2141/210 o pow. 1.002 m2, o łącznej pow. 1.915 m2 + udział 1/2 cz. w działce nr 2148/210 o pow. 446 m2,
- nr 2149/210 o pow. 898 m2 i nr 2142/210 o pow. 1.287 m2, o łącznej pow. 2.185 m2 + udział 1/2 cz. w działce nr 2148/210 o pow. 446 m2,
- nr 2150/210 o pow. 898 m2 i nr 2143/210 o pow. 1.244 m2, o łącznej pow. 2.142 m2 + udział 1/2 cz. w działce nr 2151/210 o pow. 446 m2,
- nr 2152/210 o pow. 899 m2 i nr 2144/210 o pow. 1.132 m2, o łącznej pow. 2.031 m2 + udział 1/2 cz. w działce nr 2151/210 o pow. 446 m2,
- nr 2153/210 o pow. 899 m2 i nr 2145/210 o pow. 1.020 m2, o łącznej pow. 1.919 m2 + udział 1/2 cz. w działce nr 2154/210 o pow. 446 m2,
-
nr 2155/210 o pow. 910 m2, nr 2146/210 o pow. 1.333 m2 i nr 2156/210 o pow. 894 m2, o łącznej pow. 3.137 m2 + udział 1/2 cz. w działce nr 2154/210 o pow. 446 m2.
Działki oznaczone: nr 2148/210, nr 2151/210 i nr 2154/210, przeznaczone są pod wewnętrzne drogi dojazdowe. Działki zbywane będą wraz z udziałem w gruncie przeznaczonym pod wewnętrzną drogę dojazdową.
-
Charakterystyka nieruchomości
- Właścicielem nieruchomości jest Gmina Miasto Mysłowice.
- Łączna powierzchnia nieruchomości wynosi 14.667 m2.
-
Przeznaczenie w miejscowym planie zagospodarowania przestrzennego miasta:
Brak miejscowego planu zagospodarowania przestrzennego, przystąpiono do jego sporządzenia. W Studium Uwarunkowań i Kierunków Zagospodarowania Przestrzennego Miasta Mysłowice, uchwalonym przez Radę Miasta Mysłowice uchwałą Nr XXX/656/08 z dnia 30 października 2008r. w/w działki określone zostały jako: MNU - tereny zabudowy mieszkaniowo-usługowej o niskiej intensywności.
Na działkach położonych bezpośrednio przy ulicy Dolnej, istnieje możliwość zabudowy mieszkaniowej, natomiast na działkach położonych w drugiej linii zabudowy, istnieje możliwość wprowadzenia dodatkowo zabudowy na cele związane z działalnością gospodarczą z wyłączeniem funkcji uciążliwych, hodowlanych, przetwórstwa wszelkiego rodzaju (dopuszczone są np. magazyny, warsztaty nieuciążliwe). Zagospodarowanie terenu nastąpi na podstawie szczegółowych warunków, które zostaną określone w decyzji o warunkach zabudowy, wydanej na wniosek nabywcy. - Dojazd komunikacją indywidualną - ul. Fabryczną, ul. Dolną.
- Dojazd komunikacją zbiorową: autobusami linii KZK GOP Nr 76. Nr 106, Nr 219, Nr 788.
- Uzbrojenie-rejon nieruchomości uzbrojony jest w sieci: wodno-kanalizacyjną, gazową, energetyczną i teletechniczną.
-
Sposób zagospodarowania
Charakterystyka: Grunty niezabudowane winny być wykorzystane pod zabudowę mieszkaniową jednorodzinną z możliwością wprowadzenia dodatkowo zabudowy na cele związane z działalnością gospodarczą z wyłączeniem funkcji uciążliwych, hodowlanych, przetwórstwa wszelkiego rodzaju (w drugiej linii zabudowy). Obsługa komunikacyjna zbywanych działek winna się odbywać poprzez działki przeznaczone pod wewnętrzne drogi dojazdowe. Powierzchnia w/w terenu jest zróżnicowana i opada w kierunku północno wschodnim. Wschodnia część terenu jest nadsypana i wywalcowana (dot. działek nr: 2156/210, 2146/210, 2155/210). Na działce nr 2147/210 (przy zachodniej jej granicy) rośnie orzech laskowy, a na działce nr 2141/210 (w północnej części), rośnie orzech włoski. Na pozostałych działkach rosną pojedyncze krzaki, drzewa owocowe i samosiejki. Jedynie przy ul. Dolnej (w pobliżu zakrętu) znajduje się duże skupisko wysokich drzew, które będą wymagały uzyskania zgody na ich wycinkę (dot. części działek nr: 2155/210, 2154/210 i 2153/210). Zagospodarowanie w/w gruntów nastąpi na podstawie szczegółowych warunków, które zostaną określone w decyzji o warunkach zabudowy, wydanej na wniosek nabywcy.
Nabywcy w/w nieruchomości zobowiązani będą we własnym zakresie i na własny koszt: Wykonać aktualne uzgodnienia branżowe przebiegu sieci i urządzeń uzbrojenia podziemnego względnie nadziemnego terenu; Zrealizować niezbędne dla zamierzonej inwestycji uzbrojenie techniczne i uzyskać we własnym zakresie zapewnienia dostawy mediów oraz rozwiązać sposób odprowadzania i odbioru ścieków, a także wód opadowych; W razie konieczności dokonać wycinki zieleni, po wcześniejszym uzyskaniu decyzji zezwalającej na usunięcie drzew i krzewów kolidujących z inwestycją (ewentualne opłaty z tym związane ponosi nabywca). Współwłaściciele działek przeznaczonych pod wewnętrzne drogi dojazdowe, zobowiązani będą wspólnie wykonać na własny koszt i własnym staraniem: drogę dojazdową do działek nabytych w przetargu; Przesunąć słup TP S.A. będący w kolizji z wjazdem (po uzgodnieniu z właścicielem sieci) - dot. działki nr 2151/210; Zarurować na szerokości wjazdu, istniejący rów przydrożny - dot. działek: nr 2151/210 i nr 2154/210. -
Tryb zbycia.
Przetarg ustny nieograniczony na sprzedaż poszczególnych nieruchomości wraz z udziałem w gruncie przeznaczonym pod wewnętrzną drogę dojazdową.
W przypadku zainteresowania nabyciem przedmiotowych nieruchomości szczegółowych informacji udziela
Wydział Gospodarki Nieruchomościami
Urzędu Miasta w Mysłowicach
tel. 32 317 12 36
e-mail: um@myslowice.pl
Zdjęcia:









