Archiwum ofert nieruchomości
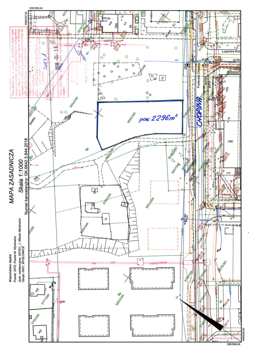
Powierzchnia: 2.296 m2
Informacja o terenie niezabudowanym, przygotowanym do zbycia pod zabudowę mieszkaniową wielorodzinną i usługi rangi ogólnomiejskiej (w tym zabudowę usługową związaną z ochroną zdrowia, edukacją).
1. Położenie
- Nieruchomość niezabudowana, położona w Mysłowicach przy ul. Fryderyka Chopina.
- Adres: 41 - 400 Mysłowice, ul. Fryderyka Chopina.
- W skład nieruchomości wchodzi działka nr 9053/349 o pow. 2.296 m2, położona na karcie mapy 3 obrębu Mysłowice, zapisana w księdze wieczystej nr KA1L/00021357/3 Sądu Rejonowego w Mysłowicach, z przeznaczeniem pod zabudowę mieszkaniową wielorodzinną i usługi rangi ogólnomiejskiej (w tym zabudowę usługową związaną z ochroną zdrowia, edukacją).
2. Charakterystyka działki
- Właścicielem nieruchomości jest Gmina Mysłowice.
- Łączna powierzchnia nieruchomości wynosi 2.296 m2.
- Przeznaczenie w miejscowym planie zagospodarowania przestrzennego.
Brak miejscowego planu zagospodarowania przestrzennego, a w obowiązującym Studium Uwarunkowań i Kierunków Zagospodarowania Przestrzennego Miasta Mysłowice uchwalonym przez Radę Miasta Mysłowice uchwałą Nr XXX/656/08 z dnia 30 października 2008 r. nin. nieruchomość położona jest w strefie ozn. MWU – tereny zabudowy mieszanej: mieszkaniowej wielorodzinnej i usług rangi ogólnomiejskiej.
Na chwilę obecną istnieje możliwość wydania decyzji administracyjnej w oparciu o ustawę z dnia 27 marca 2003 r. o Planowaniu i Zagospodarowaniu Przestrzennym (tekst jednolity Dz.U. z 2015 r. poz.199) przy równoczesnym spełnieniu warunków w niej zawartych. Wstępnie określa się, że istniejące otoczenie terenu wskazuje na przewagę (dominację) funkcji „mieszkaniowej” nad funkcją „usługową”. Istniejące w sąsiedztwie funkcje „usługowe” są to formy sklepów osiedlowych obsługujących potrzeby w wymiarze podstawowym. Na zbywanym terenie istnieje możliwość lokowania obiektów do IV - V kondygnacji nadziemnych: o wyłącznej funkcji mieszkaniowej lub obiektów mieszkalnych z funkcją usługową, handlową tylko i wyłącznie w parterze o powierzchni sprzedaży do 400 m2. Istnieje również możliwość lokowania obiektów o wyłącznej funkcji usługowej: ochrony zdrowia (np. przychodnie, gabinety), edukacyjnej (np. szkoły, przedszkola, żłobki) - o wysokości II kondygnacji; przy zachowaniu proporcjonalności terenów zabudowanych, zainwestowanych do powierzchni terenów zielonych. Na zbywanym gruncie obowiązuje całkowity zakaz lokowania jakichkolwiek obiektów o funkcji handlowej o powierzchni sprzedaży powyżej pow. 400 m2. Udział terenów zielonych urządzonych w granicach przedmiotowego obszaru winien być wprost proporcjonalny do powierzchni terenu przeznaczonego pod zabudowę i zainwestowanie. Dodatkowo wskazuje się, że w zależności od obszaru podlegającego przekształceniu, zajętego obiektami budowlanymi w wyniku realizacji inwestycji, może wystąpić konieczność spełnienia warunku z § 2 pkt. 53 lit. b rozporządzenia Rady Ministrów z dnia 9 listopada 2010 r. w sprawie przedsięwzięć mogących znacząco oddziaływać na środowisko.
Zagospodarowanie nieruchomości nastąpi na podstawie szczegółowych warunków, które zostaną określone w decyzji o warunkach zabudowy, wydanej na wniosek nabywcy. Zbywana działka znajduje się na obszarze terenu górniczego, w związku z czym przy ustalaniu warunków zabudowy, konieczne będzie uzyskanie stanowiska właściwego państwowego organu nadzoru górniczego.
- Dojazd komunikacją indywidualną - ulicą Fryderyka Chopina.
- Dojazd komunikacją zbiorową: autobusami linii KZK GOP Nr 44, Nr 223, Nr 292.
- Uzbrojenie - w rejonie nieruchomości znajduje się pełne uzbrojenie terenu (w ul. F. Chopina).
3. Sposób zagospodarowania
Charakterystyka: Nieruchomość niezabudowana, przeznaczona do sprzedaży na cele zgodne z zapisami obowiązującego Studium Uwarunkowań i Kierunków Zagospodarowania Przestrzennego Miasta Mysłowice tj. pod zabudowę mieszkaniową wielorodzinną i usługi rangi ogólnomiejskiej (w tym zabudowę usługową związaną z ochroną zdrowia, edukacją) wraz z towarzyszącą infrastrukturą techniczną. Na zbywanym terenie występują zróżnicowane wysokości – teren lekko pochyły, pofałdowany, porośnięty samosiejkami drzew i krzewów. Obsługa komunikacyjna zbywanej nieruchomości może się odbywać od ul. Chopina poprzez istniejący w terenie zjazd znajdujący się na działkach gminnych nr 9052/349 i nr 9048/348 (śladem istniejącej nie urządzonej drogi gruntowej stanowiącej ogólnodostępną wewnętrzną drogę gminną). Lokalizację zjazdu nabywca uzgodni z zarządcą drogi w odrębnym postępowaniu.
- Nabywca zobowiązany będzie we własnym zakresie i na własny koszt:
a) W razie konieczności zniwelować i uporządkować teren;
b) Uzyskać aktualne uzgodnienia branżowe przebiegu sieci i urządzeń uzbrojenia terenu;
c) Wykonać niezbędne dla zamierzonej inwestycji uzbrojenie techniczne i uzyskać we własnym zakresie zapewnienia dostawy mediów oraz odbioru ścieków i wód opadowych;
d) W przypadku ewentualnej kolizji planowanej zabudowy z zielenią, wystąpić o stosowne zezwolenie na usunięcie drzew i krzewów (koszty i opłaty związane z wycinką ponosi nabywca);
e) Wykonać raport oceny oddziaływania inwestycji na środowisko (w razie wystąpienia takiego obowiązku);
f) Przebudować chodnik zlokalizowany wzdłuż istniejącej ulicy w miejscach zjazdów do posesji (w przypadku gdy zajdzie taka konieczność). Przejazdy te winny być wykonane z wykonaniem obniżeń na zjazdach oraz odpowiednią przebudową ich konstrukcji.
- Nabywca we własnym zakresie i na własny koszt wykona drogę dojazdową do nieruchomości nabytej w przetargu w odrębnym uzgodnieniu z zarządcą drogi i w oparciu o właściwe postępowanie administracyjne.
4. Tryb zbycia
Przetarg ustny nieograniczony na sprzedaż nieruchomości.
W przypadku zainteresowania nabyciem przedmiotowej nieruchomości szczegółowych informacji udziela Wydział Gospodarki Nieruchomościami Urzędu Miasta w Mysłowicach przy ul. Powstańców 1 tel. 32 31 71 236. Szczegółowych informacji o możliwości zabudowy działki można uzyskać w Wydziale Architektury i Budownictwa Urzędu Miasta w Mysłowicach przy Placu Wolności 2, tel. 32 31 71 324 (w godz. pracy urzędu).









