Archiwum ofert nieruchomości
Informacja o terenie niezabudowanym, przygotowanym do zbycia pod zabudowę mieszkaniową jednorodzinną.
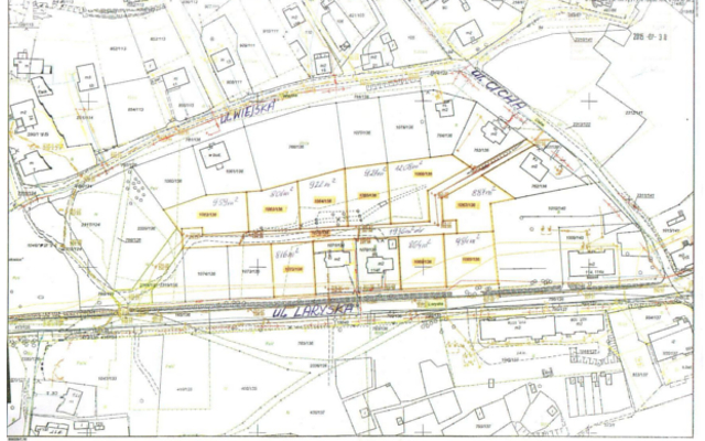
1. Położenie
- Nieruchomości niezabudowane, położone w Mysłowicach – Laryszu w rejonie ulic: Laryskiej–Cichej.
- Adres: 41 - 404 Mysłowice,ul. Laryska.
- W skład nieruchomości wchodzą działki, na karcie mapy 1 obrębu Brzezinka, zapisane w księdze wieczystej nr KA1L/00011094/8 Sądu Rejonowego w Mysłowicach, przeznaczone pod budownictwo mieszkaniowe jednorodzinne w zabudowie wolnostojącej, oznaczone numerami:
1) nr 1067/136 o pow. 887 m2
2) nr 1068/136 o pow. 984 m2
3) nr 1069/136 o pow. 864 m2
4) nr 1072/136 o pow. 816 m2
5) nr 1062/136 o pow. 959 m2
6) nr 1063/136 o pow. 801 m2
7) nr 1064/136 o pow. 922 m2
8) nr 1065/136 o pow. 927 m2
9) nr 1066/136 o pow. 1.208 m2
oraz udział 9/13 cz. w działce nr 1076/136 o pow. 1.936 m2 przeznaczonej pod wewnętrzną drogę dojazdową, zapisanej w księdze wieczystej nr KA1L/00038551/5.
2. Charakterystyka działki
- Właścicielem nieruchomości jest Gmina Mysłowice.
- Łączna powierzchnia nieruchomości wynosiok. 9.708 m2
- Przeznaczenie w miejscowym planie zagospodarowania przestrzennego:
Zgodnie z uchwalonym przez Radę Miasta Mysłowice uchwałą nr LIV/557/2005 z dnia 24 listopada 2005 r. miejscowym planem zagospodarowania przestrzennego dzielnicy „Morgi Zachód” w Mysłowicach przedmiotowe działki posiadają przeznaczenie: MU II – tereny mieszkaniowo - usługowe - zabudowa jednorodzinna z dopuszczeniem usług. Ponadto w południowej części działek nr:1068/136, 1069/136 i 1072/136 przebiega strefa ochronna sieci SN. Szczegółowe ustalenia warunków zagospodarowania terenu w obszarze stref ochronnych sieci infrastruktury technicznej, należy uzgadniać z zarządcami mediów dla których utworzono strefę. Zbywane działki znajdują się na obszarze terenu górniczego, w związku z czym wznoszenie trwałych budowli i urządzeń, zgodnie z zapisami planu miejscowego, wymaga uzgodnienia z właściwym organem państwowego nadzoru górniczego.Zagospodarowanie nin. nieruchomości nastąpi na podstawie zapisów w/w planu miejscowego.
- Dojazd komunikacją indywidualną: ul. Laryską, ul. Cichą.
- Dojazd komunikacją zbiorową: autobusami linii KZK GOP Nr 76, Nr 106, Nr 160, Nr 219, Nr 788, Nr 76N do ul. Laryskiej.
- Uzbrojenie-rejon nieruchomości uzbrojony jest w sieci: wodociągową, gazową, energetyczną, teletechniczną, kanalizacji deszczowej i kanalizacji sanitarnej (w ul. Laryskiej).
3. Sposób zagospodarowania
Charakterystyka: Nieruchomości niezabudowane przeznaczone pod zabudowę mieszkaniową jednorodzinną, zgodnie z zapisami wyżej wym. miejscowego planu zagospodarowania przestrzennego. Zbywane działki posiadają regularny kształt, za wyjątkiem działki nr 1067/136, nr 1066/136 i nr 1062/136, porośnięte są zielenią niską, a niektóre również zielenią wysoką (samosiejkami i pojedynczymi drzewami). Płożone są na terenie, na którym w latach ubiegłych gromadziły się wody opadowe. W 2014 r. na odcinku od ul. Cichej do ul. Laryskiej, została wybudowana nowa kanalizacja deszczowa z włączeniem do istniejącej kanalizacji w ul. Laryskiej. Kanalizacja ta została wybudowana m.in. na działce nr 1076/136, stanowiącej wewnętrzną drogę dojazdową do w/w działek. Przez zbywane działki nr:1068/136, 1069/136 i 1072/136 (planowane pod zabudowę mieszkaniową) przebiegają dwa kable teletechniczne podziemne, a przez działkę nr 1068/136 dodatkowo kabel energetyczny, który przebiega również w pobliżu południowej granicy działek nr 1069/136 i nr 1072/136. Przedmiotowe działki mogą być wykorzystane pod zabudowę z zastrzeżeniem, że projektowane obiekty budowlane nie mogą naruszać istniejącego uzbrojenia podziemnego terenu i przy ich lokalizacji zostaną zachowane odpowiednie odległości od sieci. W przypadku, gdyby jednak projektowana zabudowa kolidowała z przebiegającymi sieciami, nabywcy zobowiązani będą we własnym zakresie i na własny koszt dokonać przełożenia sieci, po uzgodnieniu z ich gestorami(realizacja zabudowy mieszkaniowej na działce nr 1068/136 ewidentnie wymaga przebudowy istniejącej sieci teletechnicznej). Nabywcy działek zobowiązani będą zapewnić właścicielom sieci dostęp do sieci, celem przeprowadzenia konserwacji lub usunięcia awarii. Obsługa komunikacyjna zbywanych nieruchomości może się odbywać od ul. Cichej bądź od ul. Laryskiej. Podstawowa obsługa komunikacyjna nin. działek zalecana jest od ul. Laryskiej, po działce nr 2318/136, stanowiącej ogólnodostępną wewnętrzną drogę gminną, a następnie po działce nr 1076/136, w której Gmina Mysłowice sprzedaje swoje udziały. Lokalizację zjazdu z ul. Laryskiej nabywcy uzgodnią z zarządcą drogi w odrębnym postępowaniu.
Nabywcy zobowiązani będą we własnym zakresie i na własny koszt:
- Wykonać badanie geotechniczne gruntu i dokonać odwodnienia (drenażu) działek;
- W razie potrzeby wyrównać i uporządkować teren oraz dokonać ewentualnej wycinki drzew i krzewów kolidujących z planowaną zabudową (koszty i opłaty z tym związane ponoszą nabywcy);
- Wykonać uzgodnienia branżowe przebiegu sieci uzbrojenia terenu oraz zrealizować niezbędne dla zamierzonej inwestycji uzbrojenie technicznei uzyskać we własnym zakresie zapewnienia dostawy mediów oraz odbioru ścieków, a także wód opadowych;
- Dokonać przebudowy sieci teletechnicznej, w uzgodnieniu z właścicielem sieci, w przypadku gdy zajdzie taka konieczność;
- Wspólnie wykonać na działce nr 1076/136 wewnętrzną drogę dojazdową do działek nabytych w przetargu.
4. Tryb zbycia.
Przetarg ustny nieograniczony na sprzedaż poszczególnych działek wraz z udziałem 1/13 cz. w działce nr 1076/136 przeznaczonej pod wewnętrzną drogę dojazdową.
W przypadku zainteresowania nabyciem przedmiotowych nieruchomości szczegółowych informacji udziela Wydział Gospodarki Nieruchomościami Urzędu Miasta w Mysłowicach przy ul. Powstańców 1, tel. 32 31 71 236. Szczegółowych informacji o możliwości zabudowy działek można uzyskać w Wydziale Architektury i Budownictwa Urzędu Miasta w Mysłowicach przy Placu Wolności 2, tel. 32 31 71 324 (w godz. pracy urzędu).









