2016
Lokalizacja: Mysłowice w rejonie ulic Laryska i Cicha
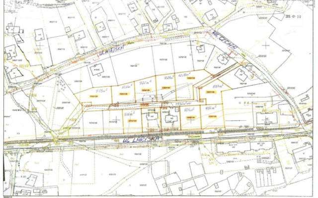
Prezydent Miasta Mysłowice ogłasza ustny przetarg nieograniczony na sprzedaż niżej wym. działek niezabudowanych, stanowiących własność Gminy Mysłowice, położonych w Mysłowicach - Laryszuw rejonie ulic: Laryskiej i Cichej, zapisanych w księdze wieczystej nr KA1L/00011094/8, przeznaczonych pod zabudowę mieszkaniową jednorodzinną wraz ze sprzedażą udziałów w działce nr 1076/136 o pow. 1936 m2, zapisanej w księdze wieczystej nr KA1L/00038551/5 Sądu Rejonowego w Mysłowicach,przeznaczonej pod wewnętrzną drogę dojazdową:
|
L.p. |
Numery działek na k.m.1 obrębu Brzezinka i powierzchnie |
Łączna cena wywoławcza nieruchomości pod zabudowę i udziału w drodze (netto) |
Wysokość wadium |
|
1. |
2. |
3. |
4. |
|
1. |
nr 1064/136o pow. 922 m2+ udział 1/13 cz. w działce nr 1076/136 o pow. 1936 m2 |
95.000,-zł |
19.000,-zł |
|
2. |
nr 1065/136o pow. 927 m2+ udział 1/13 cz. w działce nr 1076/136 o pow. 1936 m2 |
95.000,-zł |
19.000,-zł |
|
3. |
nr 1066/136o pow.1208 m2 + udział 1/13 cz. w działce nr 1076/136 o pow. 1936 m2 |
120.000,-zł |
24.000,-zł |
Zgodnie z uchwalonym przez Radę Miasta Mysłowice uchwałą nr LIV/557/2005 z dnia 24 listopada 2005 r. miejscowym planem zagospodarowania przestrzennego dzielnicy „Morgi Zachód” w Mysłowicach przedmiotowe działki posiadają przeznaczenie: MU II – tereny mieszkaniowo - usługowe - zabudowa jednorodzinna z dopuszczeniem usług. Zbywane działki znajdują się na obszarze terenu górniczego, w związku z czym wznoszenie trwałych budowli i urządzeń, zgodnie z zapisami planu miejscowego, wymaga uzgodnienia z właściwym organem państwowego nadzoru górniczego.Zagospodarowanie nin. nieruchomości nastąpi na podstawie zapisów planu miejscowego. Zbywane w/w działki oraz udziały Gminy Mysłowice w działce nr 1076/136, nie są obciążone prawami osób trzecich i nie są przedmiotem zobowiązań.
Postąpienie w przetargunie może wynosić mniej niż 1% łącznej ceny wywoławczej nieruchomości pod zabudowę i udziału w drodze, z zaokrągleniem w górę do pełnych dziesiątek złotych.Cena osiągnięta w przetargu za nieruchomość pod zabudowę i udział w drodze, podlega zapłacie nie później niż do dnia zawarcia umowy przenoszącej własność nieruchomości. Do wylicytowanej ceny sprzedaży (działki pod zabudowę i udziału w drodze), zostanie doliczony podatek VAT według stawki obowiązującej na dzień sprzedaży (na dzień ogłaszania przetargu podatek VAT wynosi 23%). Osoba, która wygra przetarg, zobowiązana będzie do zapłaty wylicytowanej ceny sprzedaży nieruchomości wraz z należnym podatkiem VAT w całości, nie później niż do dnia zawarcia notarialnej umowy przenoszącej własność nieruchomości. Za potwierdzenie wpłaty przyjmuje się datę uznania rachunku bankowego Miasta Mysłowice.
Przetarg odbędzie się w dniu 12 kwietnia 2016 r. o godz. 11.30 w sali nr 204
Urzędu Miasta w Mysłowicach przy ul. Powstańców 1.
W przetargu mogą brać udział osoby fizyczne lub prawne, które najpóźniej do dnia6 kwietnia 2016 r. wniosą odpowiednie wyżej wym. wadiumw pieniądzu wpłacając je na konto depozytowe Miasta Mysłowice Nr 13 1050 1214 1000 0023 5654 6974 ING Bank Śląski,z podaniem w/w nr działek. Za datę wniesienia wadium uważa się datę wpływu środków pieniężnych na powyższy rachunek bankowy. Osoby przystępujące do przetargu na więcej niż jedną wybraną działkę zobowiązane są wpłacić oddzielne (osobne) wadium na każdą z tych działek.Wadium wpłacone przez uczestnika przetargu, który przetarg wygra zostanie zaliczone na poczet ceny nabycia nieruchomości, w dniu zapłaty reszty ceny sprzedaży. Pozostałym uczestnikom przetargu wadium jest zwracane w terminie 3 dni od dnia zamknięcia przetargu (bez oprocentowania), na konto przez nich wskazane. Organizator przetargu jest obowiązany zawiadomić osobę ustaloną jako nabywca nieruchomości o miejscu i terminie zawarcia umowy sprzedaży, najpóźniej w ciągu 21 dni od dnia rozstrzygnięcia przetargu. Wyznaczony termin nie może być krótszy niż 7 dni od dnia doręczenia zawiadomienia. Jeżeli osoba ustalona jako nabywca nieruchomości nie przystąpi bez usprawiedliwienia do zawarcia umowy w miejscu i w terminie podanych w zawiadomieniu, organizator przetargu może odstąpić od zawarcia umowy, a wpłacone wadium nie podlega zwrotowi.
Przed otwarciem przetargu jego uczestnik winien przedłożyć Komisji Przetargowej:
- Dowód wniesienia wadium (oryginał).
- Dokument tożsamości.
- Aktualny odpis lub zaświadczenie z właściwego rejestru wystawione nie wcześniej niż 6 miesięcy przed upływem terminu przetargu w przypadku, gdy nieruchomość będzie nabywana przez uczestnika przetargu w ramach prowadzonej działalności gospodarczej, a w przypadku wspólników spółek cywilnych także umowę spółki cywilnej.
- Oryginał pełnomocnictwa potwierdzonego notarialnie, upoważniającego do działania na każdym etapie postępowania przetargowego, w przypadku osoby reprezentującej uczestnika przetargu.
- Pisemną zgodę współmałżonka na odpłatne nabycie nieruchomości, w przypadku uczestnika przetargu zamierzającego samodzielnie licytować nieruchomość nabywaną do majątku wspólnego.
- Oświadczenie, że oferent zapoznał się z dokumentacją zbywanej nieruchomości, jej stanem faktycznym i prawnym oraz z warunkami przetargu i przyjmuje je bez zastrzeżeń.
- Oświadczenie, że oferent zapoznał się z rozporządzeniem Rady Ministrów z dnia 14 września 2004 roku w sprawie sposobu i trybu przeprowadzania przetargów oraz rokowań na zbycie nieruchomości (tekst jednolity Dz.U. z 2014 r. poz. 1490).
- Numer i nazwę rachunku bankowego, na które zostanie zwrócone wadium, w przypadku nie wygrania przetargu.
Cudzoziemcy mogą nabywać nieruchomości, zgodnie z obowiązującymi przepisami ustawy o nabywaniu nieruchomości przez cudzoziemców.
Dodatkowe informacje dot. zbywanych działek oraz warunki realizacji zamierzeń inwestycyjnych:
Nieruchomości niezabudowane przeznaczone pod zabudowęmieszkaniową jednorodzinną, zgodnie z zapisami wyżej wym. miejscowego planu zagospodarowania przestrzennego. Zbywane działki posiadają regularny kształt, za wyjątkiem działki nr 1066/136, porośnięte są zielenią niską i wysoką (samosiejkami i drzewami). Płożone są na terenie, na którym w latach ubiegłych gromadziły się wody opadowe (na działkach tych znajduje się ślad rowu - cieku wodnego, a na działce nr 1065/136 dodatkowo znajduje się mostek). W 2014 r. na odcinku od ul. Cichej do ul. Laryskiej, została wybudowana nowa kanalizacja deszczowa z włączeniem do istniejącej kanalizacji w ulicy Laryskiej. Kanalizacja ta została wybudowana m.in. na działce nr 1076/136, stanowiącej wewnętrzną drogę dojazdową do w/w działek(istnieje możliwość włączenia drenażu do nowo wybudowanej na działce nr 1076/136 kanalizacji deszczowej, celem odbioru wód opadowych z powierzchni nin. działek). Współwłaściciele działki drogowej nr 1076/136, zobowiązani będą zapewnić właścicielowi sieci kanalizacyjnej dostęp do tej sieci, celem przeprowadzenia konserwacji lub usunięcia awarii.
Obsługa komunikacyjna zbywanych nieruchomości może się odbywać od ul. Cichej bądź od ul. Laryskiej. Podstawowa obsługa komunikacyjna nin. działek zalecana jest od ul. Laryskiej, po działce nr 2318/136, stanowiącej ogólnodostępną wewnętrzną drogę gminną, a następnie po działce nr 1076/136, w której Gmina Mysłowice sprzedaje swoje udziały. Lokalizację zjazdu z ul. Laryskiej nabywcy uzgodnią z zarządcą drogi w odrębnym postępowaniu.
Zbywane działki znajdują się na obszarze terenu górniczego, w związku z czym wznoszenie trwałych budowli i urządzeń, zgodnie z zapisami planu miejscowego, wymaga uzgodnienia z właściwym organem państwowego nadzoru górniczego.
Nabywcy zobowiązani będą we własnym zakresie i na własny koszt:
- Wykonać badanie geotechniczne gruntu i dokonać odwodnienia (drenażu) działek;
- W razie potrzeby wyrównać i uporządkować teren oraz dokonać wycinki drzew i krzewów kolidujących z planowaną zabudową, po wcześniejszym uzyskaniu stosownej decyzji na wycinkę (koszty i opłaty z tym związane ponoszą nabywcy);
- Wykonać uzgodnienia branżowe przebiegu sieci uzbrojenia terenu oraz zrealizować niezbędne dla zamierzonej inwestycji uzbrojenie technicznei uzyskać we własnym zakresie zapewnienia dostawy mediów oraz odbioru ścieków, a także wód opadowych;
- Wspólnie wykonać na działce nr 1076/136 wewnętrzną drogę dojazdową do działek nabytych w przetargu.
W przypadku wystąpienia w obrębie nabytych działek sieci nie ujawnionych na istniejących mapach i dokumentach, a kolidujących z inwestycją, Miasto Mysłowice nie będzie ponosiło z tego tytułu żadnej odpowiedzialności.
Nabywcy zobowiązani również będą do poniesienia w całości kosztów notarialnych oraz kosztów i opłat sądowych związanych z nabyciem nieruchomości.
Treść nin. ogłoszenia dostępna jest na stronie internetowej miasta i w Biuletynie Informacji Publicznej oraz na tablicy ogłoszeń w siedzibie Urzędu Miasta Mysłowice (na II piętrze) obok pok. 302 Wydziału Gospodarki Nieruchomościami, w którym również można zapoznać się z dokumentacją zbywanych nieruchomości tel. 32 31 71 236. Szczegółowych informacji o możliwości zabudowy działek można uzyskać w Wydziale Architektury i Budownictwa Urzędu Miasta w Mysłowicach przy Placu Wolności 2, tel. 32 31 71 324 (w godz. pracy urzędu).
Treść ogłoszenia (0.73 KB)









