2016
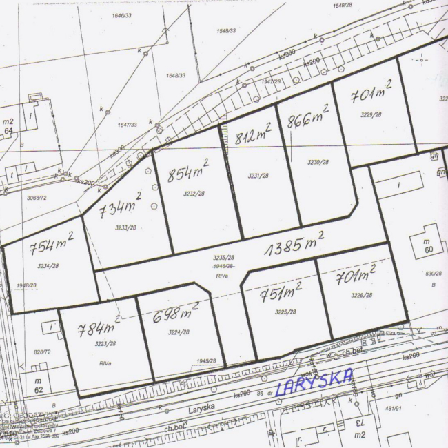
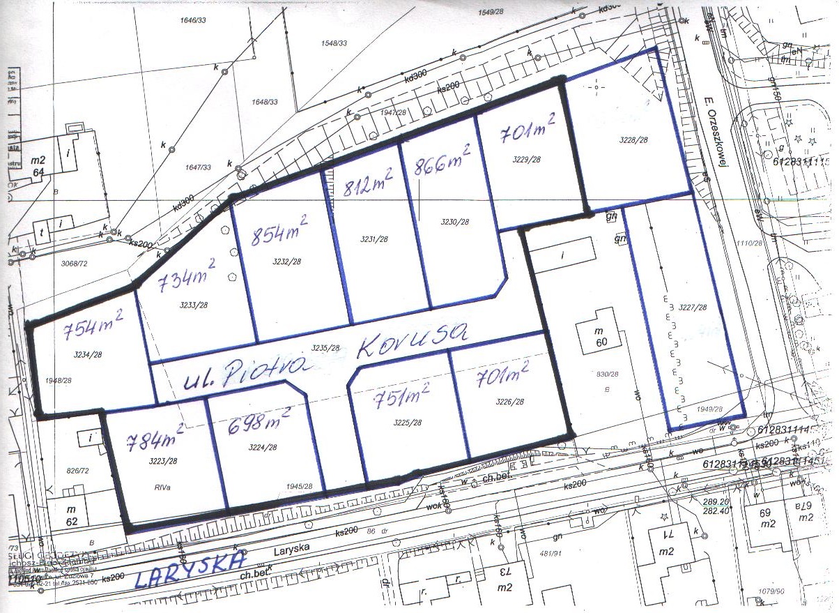
Prezydent Miasta Mysłowice ogłasza ustny przetarg nieograniczony na sprzedaż niżej wym. działek niezabudowanych, stanowiących własność Gminy Mysłowice, położonych w Mysłowicach w rejonie ulic: Laryskiej i Piotra Korusa, na karcie mapy 3 obrębu Brzezinka, zapisanych w księdze wieczystej nr KA1L/00011382/4 Sądu Rejonowego w Mysłowicach, przeznaczonych pod zabudowę mieszkaniową jednorodzinną:
|
L.p. |
Numer działki
|
Powierzchnia |
Cena wywoławcza nieruchomości |
Wysokość wadium |
|
1. |
2. |
3. |
4. |
5 |
|
1. |
nr 3223/28 |
784 m2 |
93.000,-zł |
18.600,-zł |
|
2. |
nr 3224/28 |
698 m2 |
83.000,-zł |
16.600,-zł |
|
3. |
nr 3225/28 |
751 m2 |
89.500,-zł |
17.900,-zł |
|
4. |
nr 3226/28 |
701 m2 |
83.500,-zł |
16.700,-zł |
|
5. |
nr 3234/28 |
754 m2 |
85.000,-zł |
17.000,-zł |
W/w działki nie posiadają opracowanego miejscowego planu zagospodarowania przestrzennego, a w obowiązującym Studium Uwarunkowań i Kierunków Zagospodarowania Przestrzennego Miasta Mysłowice uchwalonym przez Radę Miasta Mysłowice uchwałą Nr XXX/656/08 z dnia 30 października 2008 r. położone są w strefie ozn. MN – tereny zabudowy jednorodzinnej. Zagospodarowanie nieruchomości nastąpi na podstawie szczegółowych warunków, które zostaną określone w decyzji o warunkach zabudowy, wydanej na wniosek nabywcy. Zbywane działki nie są obciążone prawami osób trzecich i nie są przedmiotem zobowiązań. Działy III i IV księgi wieczystej prowadzonej dla w/w działek nie zawierają wpisów.
Postąpienie w przetargu nie może wynosić mniej niż 1% ceny wywoławczej nieruchomości, z zaokrągleniem w górę do pełnych dziesiątek złotych. Cena osiągnięta w przetargu za nieruchomość podlega zapłacie w całości nie później niż do dnia zawarcia umowy przenoszącej własność nieruchomości, gdzie za potwierdzenie wpłaty przyjmuje się datę uznania rachunku bankowego Miasta Mysłowice. Sprzedaż nieruchomości może podlegać, zgodnie z przepisami, opodatkowaniu podatkiem VAT według stawki obowiązującej na dzień sprzedaży. Na dzień ogłaszania przetargu, sprzedaż nin. działek zwolniona jest od podatku VAT na podstawie art. 43 ust. 1 pkt 9 ustawy z dnia 11 marca 2004 r. o podatku od towarów i usług (tekst jednolity Dz.U. z 2016 r. poz. 710), w związku z art. 2 pkt 33 tej ustawy.
Przetarg odbędzie się w dniu 23 sierpnia 2016 r. o godz. 10.00 w sali nr 204
Urzędu Miasta w Mysłowicach przy ul. Powstańców 1.
W przetargu mogą brać udział osoby fizyczne lub prawne, które najpóźniej do dnia 17 sierpnia 2016 r. wniosą odpowiednie wyżej wym. wadium w pieniądzu wpłacając je na konto depozytowe Miasta Mysłowice Nr 13 1050 1214 1000 0023 5654 6974 ING Bank Śląski, z podaniem w/w nr działek. Za datę wniesienia wadium uważa się datę wpływu środków pieniężnych na powyższy rachunek bankowy. Osoby przystępujące do przetargu na więcej niż jedną wybraną działkę zobowiązane są wpłacić oddzielne (osobne) wadium na każdą z tych działek. Wadium wpłacone przez uczestnika przetargu, który przetarg wygra zostanie zaliczone na poczet ceny nabycia nieruchomości, w dniu zapłaty reszty ceny sprzedaży. Pozostałym uczestnikom przetargu wadium jest zwracane w terminie 3 dni od dnia zamknięcia przetargu (bez oprocentowania), na konto przez nich wskazane. Organizator przetargu jest obowiązany zawiadomić osobę ustaloną jako nabywca nieruchomości o miejscu i terminie zawarcia umowy sprzedaży, najpóźniej w ciągu 21 dni od dnia rozstrzygnięcia przetargu. Wyznaczony termin nie może być krótszy niż 7 dni od dnia doręczenia zawiadomienia. Jeżeli osoba ustalona jako nabywca nieruchomości nie przystąpi bez usprawiedliwienia do zawarcia umowy w miejscu i w terminie podanych w zawiadomieniu, organizator przetargu może odstąpić od zawarcia umowy, a wpłacone wadium nie podlega zwrotowi.
Przed otwarciem przetargu jego uczestnik winien przedłożyć Komisji Przetargowej:
- Dowód wniesienia wadium (oryginał).
- Dokument tożsamości.
- Aktualny odpis lub zaświadczenie z właściwego rejestru wystawione nie wcześniej niż 6 miesięcy przed upływem terminu przetargu w przypadku, gdy nieruchomość będzie nabywana przez uczestnika przetargu w ramach prowadzonej działalności gospodarczej, a w przypadku wspólników spółek cywilnych także umowę spółki cywilnej.
- Oryginał pełnomocnictwa potwierdzonego notarialnie, upoważniającego do działania na każdym etapie postępowania przetargowego, w przypadku osoby reprezentującej uczestnika przetargu.Pisemną zgodę współmałżonka na odpłatne nabycie nieruchomości, w przypadku uczestnika przetargu zamierzającego samodzielnie licytować nieruchomość nabywaną do majątku wspólnego.
- Oświadczenie, że oferent zapoznał się z dokumentacją zbywanej nieruchomości, jej stanem faktycznym i prawnym oraz z warunkami przetargu i przyjmuje je bez zastrzeżeń.
- Oświadczenie, że oferent zapoznał się z rozporządzeniem Rady Ministrów z dnia 14 września 2004 r. w sprawie sposobu i trybu przeprowadzania przetargów oraz rokowań na zbycie nieruchomości (tekst jednolity Dz.U. z 2014 r. poz. 1490).
- Numer i nazwę rachunku bankowego, na które zostanie zwrócone wadium, w przypadku nie wygrania przetargu.
Cudzoziemcy mogą nabywać nieruchomości, zgodnie z obowiązującymi przepisami ustawy o nabywaniu nieruchomości przez cudzoziemców.
Dodatkowe informacje dot. zbywanych działek oraz warunki realizacji zamierzeń inwestycyjnych:
Działki niezabudowane, przeznaczone pod zabudowę mieszkaniową jednorodzinną, zgodnie z zapisami wyżej wym. Studium. Nin. działki posiadają regularny kształt, porośnięte są samosiejkami drzew i krzewów. Na terenie zbywanych działek występują znaczne różnice wysokości – teren nachylony w kierunku północnym. Działki wym. w poz. od 1 do 4 położone są przy ul. Laryskiej w pierwszej linii zabudowy, natomiast działka wym. w poz. 5 położona jest w drugiej linii zabudowy. Przez działki nr 3223/28, nr 3224/28, nr 3225/28 i nr 3226/28, przy południowej ich granicy (wzdłuż ul. Laryskiej), przebiega podziemny kabel teletechniczny, a przez działki nr 3225/28 i nr 3226/28 dodatkowo w tej granicy przebiega podziemny kabel energetyczny. Nin. uzbrojenie, ze względu na planowaną linię zabudowy działek, nie ogranicza możliwości inwestycyjnych. Przedmiotowe działki mogą być wykorzystane pod zabudowę z zastrzeżeniem, że projektowane obiekty budowlane nie mogą naruszać istniejącego uzbrojenia podziemnego terenu i przy ich lokalizacji zostaną zachowane odpowiednie odległości od sieci. W przypadku, gdyby jednak projektowana zabudowa kolidowała z przebiegającymi sieciami, nabywcy zobowiązani będą we własnym zakresie i na własny koszt dokonać przełożenia sieci, po uzgodnieniu z ich gestorami. Nabywcy tych działek zobowiązani będą zapewnić właścicielom sieci dostęp do sieci, celem przeprowadzenia konserwacji lub usunięcia awarii. Obsługa komunikacyjna zbywanych nieruchomości będzie się odbywać od ulicy Laryskiej, po działce gminnej nr 3235/28, przeznaczonej pod wewnętrzną ogólnodostępną drogę dojazdową, której nadano nazwę ulicy Piotra Korusa. Lokalizację zjazdu nabywcy uzgodnią z zarządcą drogi w odrębnym postępowaniu. Zagospodarowanie nieruchomości nastąpi na podstawie szczegółowych warunków, które zostaną określone w decyzji o warunkach zabudowy, wydanej na wniosek nabywcy. Zbywane działki znajdują się na obszarze terenu górniczego, w związku z czym przy ustalaniu warunków zabudowy, konieczne będzie uzyskanie stanowiska właściwego państwowego organu nadzoru górniczego.
Nabywcy zobowiązani będą we własnym zakresie i na własny koszt:
- Wykonać badanie geotechniczne gruntu;
- Dokonać wycinki zieleni, po wcześniejszym uzyskaniu decyzji zezwalającej na usunięcie drzew i krzewów kolidujących z planową zabudową (ewentualne opłaty z tym związane ponoszą nabywcy);
- W razie potrzeby zniwelować i uporządkować teren oraz gdy zajdzie taka konieczność dokonać odwodnienia działek;
- Wykonać uzgodnienia branżowe przebiegu sieci uzbrojenia terenu oraz zrealizować niezbędne dla zamierzonej inwestycji uzbrojenie techniczne i uzyskać we własnym zakresie zapewnienia dostawy mediów oraz odbioru ścieków, a także wód opadowych.
- W przypadku wystąpienia w obrębie nabytych działek sieci nie ujawnionych na istniejących mapach i dokumentach, a kolidujących z inwestycją, jak też wystąpienia zmian w przepisach w tym dotyczących zagospodarowania przestrzennego, Miasto Mysłowice nie będzie ponosiło z tego tytułu żadnej odpowiedzialności.
- Nabywcy zobowiązani również będą do poniesienia w całości kosztów notarialnych oraz kosztów i opłat sądowych związanych z nabyciem nieruchomości.
Treść nin. ogłoszenia dostępna jest na stronie internetowej miasta i w Biuletynie Informacji Publicznej oraz na tablicy ogłoszeń w siedzibie Urzędu Miasta Mysłowice (na II piętrze) obok pok. 302 Wydziału Gospodarki Nieruchomościami, w którym również można zapoznać się z dokumentacją zbywanych nieruchomości tel. 32 31 71 236. Szczegółowych informacji o możliwości zabudowy działek można uzyskać w Wydziale Architektury i Budownictwa Urzędu Miasta w Mysłowicach przy Placu Wolności 2, tel. 32 31 71 324 (w godz. pracy urzędu).
Treść ogłoszenia (65.98 KB)









