2017
Status: Archiwalny
Lokalizacja: Mysłowice, ul. Stokrotek
Powierzchnia: 0,0657 ha
Lokalizacja: Mysłowice, ul. Stokrotek
Powierzchnia: 0,0657 ha
Informacja o niezabudowanym terenie o pow. 0,0657 ha, przygotowywanym do zbycia pod zabudowę na cele usług publicznych i komercyjnych o lokalnym zasięgu oddziaływania
-
Położenie
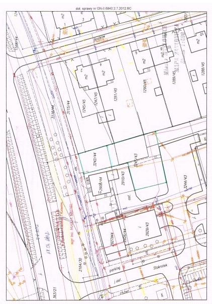
- Nieruchomość położona w Mysłowicach w rejonie ulic Stokrotek i Mikołowskiej, niezabudowana
- Adres: 41 - 400 Mysłowice, ul. Stokrotek
- W skład nieruchomości wchodzi grunt obejmujący działkę nr 3242/44 o pow. 151 m2 zapisaną w księdze wieczystej KA1L/00007176/6 Sądu Rejonowego w Mysłowicach oraz działkę nr 3245/43 o pow. 506 m2, zapisaną w księdze wieczystej KA1L/00021956/2 Sądu Rejonowego w Mysłowicach, usytuowane na karcie mapy 4 obrębu Mysłowice i oznaczone w operacie ewidencji gruntów jako użytek Bp.
-
Charakterystyka działki
- Właścicielem nieruchomości jest Gmina Mysłowice.
- Łączna powierzchnia nieruchomości wynosi 0,0657 ha
-
Przeznaczenie w miejscowym planie zagospodarowania przestrzennego miasta: teren nie posiada pokrycia planem miejscowym, w Studium Uwarunkowań i Kierunków Zagospodarowania Przestrzennego Miasta Mysłowice zatwierdzonym przez Radę Miasta Mysłowice uchwałą Nr XXX/656/08 z dnia 30 października 2008 r. nieruchomość posiada przeznaczenie:
MN – tereny zabudowy jednorodzinnej
Nieruchomość jest niezabudowana, położona na południe od centrum miasta i usytuowana jest w rejonie ulic Stokrotek i Mikołowskiej. Grunt jest nierówny, a wzdłuż granicy wschodniej zagospodarowany jest pod ogródek porośnięty drzewami ozdobnymi i owocowymi oraz mocno zakrzewiony. Przez działkę nr 3245/43 w kierunku północ – południe przebiega sieć kanalizacji sanitarnej Ø 300, w jej części południowej przebiega sieć elektryczna ŚN, a także usytuowana jest studzienka kanalizacji sanitarnej Ø 150. Obsługa komunikacyjna nieruchomości może odbywać z drogi publicznej ulicy Stokrotek poprzez istniejący zjazd. - Dojazd komunikacją zbiorową: autobusami linii KZK GOP Nr: 76, 223, 160 i 618 do przystanku Ćmok Rondo (Janowska) lub Ćmok Rondo (Mikołowska), a następnie przejście pieszo.
- Uzbrojenie – w pobliżu nieruchomości przebiega sieć: wodociągowa, kanalizacyjna deszczowa i sanitarna, elektryczna i gazowa.
-
Sposób zagospodarowania
Zagospodarowanie terenu nastąpi na podstawie szczegółowych warunków, które zostaną określone w decyzji o warunkach zabudowy, wydanej na wniosek nabywcy. Grunt stanowi funkcjonalną całość, na którym można zrealizować inwestycje zgodne z kierunkiem jego przeznaczenia. W zakresie niezbędnym do prawidłowego funkcjonowania i zagospodarowania nieruchomości jej nabywca własnym staraniem i na własny koszt, zobowiązany będzie do zrealizowania uzbrojenia technicznego dla zamierzonej inwestycji oraz zapewnienia dostawy mediów, a także uzyskania zezwolenia i dokonania wycinki istniejącej zieleni. W przypadku, gdyby projektowana zabudowa kolidowała z przebiegającymi sieciami, nabywca na własny koszt i we własnym zakresie dokona ich przekładki po dokonaniu uzgodnień w tym zakresie z właścicielami sieci. -
Tryb zbycia.
Przetarg.
Szczegółowych informacji dotyczących zbywanych nieruchomości udziela
Wydział Gospodarki Nieruchomościami
Urzędu Miasta w Mysłowicach
tel. 32 317 12 36
a informację o możliwości zabudowy tego terenu można uzyskać w
Wydziale Architektury i Budownictwa
Urzędu Miasta w Mysłowicach
tel. 32 317 13 24
Zdjęcia:









