2017
Lokalizacja: Rynek
Powierzchnia: 1489 m2
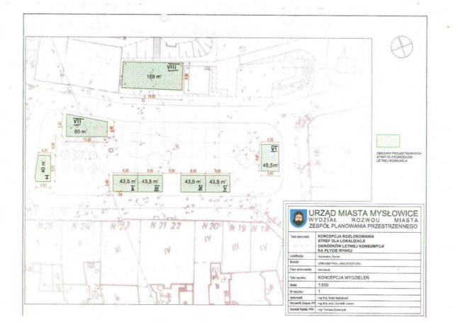
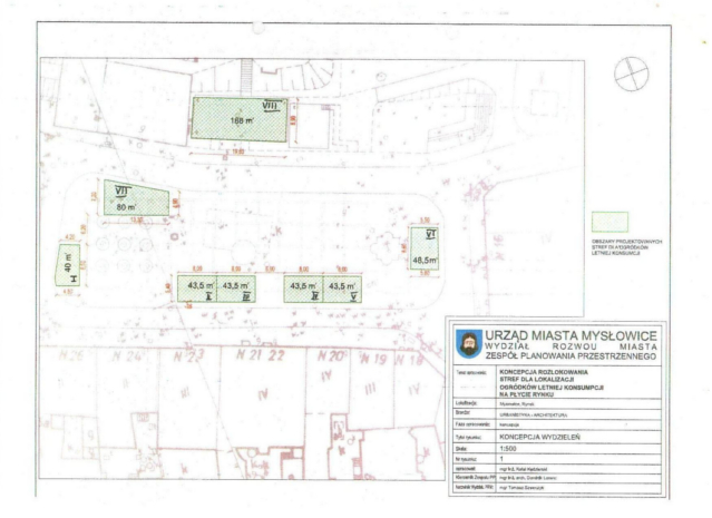
Prezydent Miasta Mysłowice ogłasza pisemny przetarg nieograniczony na dzierżawę w roku 2017 nieruchomości położonych w Mysłowicach przy ulicy Rynek oznaczonych jako części działek o numerach ewidencyjnych: 662/170 o powierzchni całkowitej 4.357 m2 i 1071/123 o powierzchni całkowitej 1489 m2, k.m. 8, Obręb Mysłowice, dla których Sąd Rejonowy w Mysłowicach prowadzi księgi wieczyste o numerach KA1L/00020952/7, KA1L/00007646/2 z przeznaczeniem pod lokalizację ośmiu „ogródków letniej konsumpcji” – sprzedaż sezonową o powierzchni:
- „ogródek letniej konsumpcji nr I” o powierzchni 40 m2;
- „ogródek letniej konsumpcji nr II” o powierzchni 43,50 m2;
- „ogródek letniej konsumpcji nr III” o powierzchni 43,50 m2;
- „ogródek letniej konsumpcji nr IV” o powierzchni 43,50 m2;
- „ogródek letniej konsumpcji nr V” o powierzchni 43,50 m2;
- „ogródek letniej konsumpcji nr VI” o powierzchni 48,50 m2;
- „ogródek letniej konsumpcji nr VII” o powierzchni 80 m2;
- „ogródek letniej konsumpcji nr VIII” o powierzchni 168 m2;
celem wybrania najkorzystniejszych ofert dla każdej z w/w lokalizacji z osobna, w których oferenci wskażą okres dzierżawy nie przekraczający okresu od dnia 1 kwietnia 2017 roku do dnia 31 grudnia 2017 roku oraz propozycję stawki czynszu dzierżawnego za 1 m2 gruntu miesięcznie.
W zależności od sposobu zainwestowania koniecznym będzie uzyskanie stosownych decyzji administracyjnych m.in. z zakresu architektury i budownictwa. Nieruchomości posiadają pokrycie miejscowym planem zagospodarowania przestrzennego „Stare Miasto i Piasek Południowy” zatwierdzonym Uchwałą Rady Miasta Mysłowice Nr IV/14/14 z dnia 2 grudnia 2014 roku opublikowaną w Dzienniku Urzędowym Województwa Śląskiego dnia 2 stycznia 2015 roku pod pozycją 13 (Dz. Urz.Woj.Śla. 2015.13), zgodnie z którym przedmiotowe działki mają następujące przeznaczenie: działka 662/170 jest oznaczona jako strefa KPP – teren placu miejskiego – Rynku, działka 1071/123 oznaczona jest jako strefa 3U/M.W. – tereny zabudowy usługowej i tereny zabudowy usługowo-mieszkaniowej. Zagospodarowanie nieruchomości ma być zgodne z opracowaną koncepcją zagospodarowania i nie może ingerować w obszar terenowo stanowiący pas drogowy drogi publicznej ulicy Rynek. Szczegółowe warunki dzierżawy określa projekt umowy.
Stawka wywoławcza czynszu dzierżawnego została ustalona w wysokości: 8,25 zł. (słownie: osiem złotych 25/100) netto miesięcznie za 1 m2 gruntu, dla każdej z lokalizacji z osobna, czynsz płatny miesięcznie w terminie do 10 dnia każdego miesiąca za dany miesiąc.
Do czynszu dzierżawnego, zgodnie z obowiązującymi przepisami doliczony zostanie podatek VAT według stawki obowiązującej na dzień zawarcia umowy dzierżawy (obecnie obowiązuje stawka 23%).
Część jawna przetargu odbędzie się w dniu 21 marca 2017 roku o godz. 9.00 w sali nr 204 Urzędu Miasta Mysłowice przy ul. Powstańców 1
W przetargu mogą wziąć udział osoby fizyczne i prawne, które najpóźniej do dnia 16 marca 2017r. wniosą w formie pieniężnej wadium w wysokości odpowiednio:
- „ogródek letniej konsumpcji nr I” o powierzchni 40 m2 wynosi 198,00 zł;
- „ogródek letniej konsumpcji nr II” o powierzchni 43,50 m2 wynosi 215,33 zł;
- „ogródek letniej konsumpcji nr III” o powierzchni 43,50 m2 wynosi 215,33 zł;
- „ogródek letniej konsumpcji nr IV” o powierzchni 43,50 m2 wynosi 215,33 zł;
- „ogródek letniej konsumpcji nr V” o powierzchni 43,50 m2 wynosi 215,33 zł;
- „ogródek letniej konsumpcji nr VI” o powierzchni 48,50 m2 wynosi 240,08 zł;
- „ogródek letniej konsumpcji nr VII” o powierzchni 80 m2 wynosi 396,00 zł;
- „ogródek letniej konsumpcji nr VIII” o powierzchni 168 m2 wynosi: 831,60 zł;
Wpłaty wadium dokonuje się na konto: Urzędu Miasta Mysłowice Nr 13 1050 1214 1000 0023 5654 6974 ING Bank Śląski, lub w kasie Urzędu Miasta Mysłowice przy ul. Powstańców 1 (Biuro Obsługi Mieszkańca) tytułem: „Wadium pisemny przetarg nieograniczony na dzierżawę w roku 2017 – ogródek letniej konsumpcji nr ….”. Za potwierdzenie wpłaty wadium przyjmuje się datę uznania rachunku bankowego Urzędu Miasta Mysłowice. Wadium wpłacone przez uczestnika przetargu, który przetarg wygrał zostanie zaliczone na poczet czynszu dzierżawnego. Pozostałym uczestnikom wadium zostanie zwrócone w terminie 3 dni od dnia odwołania lub zamknięcia przetargu na konto przez nich wskazane. Wadium zwraca się bez oprocentowania. Osoba ustalona jako dzierżawca nieruchomości zostanie zawiadomiona o miejscu i terminie zawarcia umowy dzierżawy najpóźniej w ciągu 21 dni od dnia rozstrzygnięcia przetargu. Jeżeli osoba ustalona jako dzierżawca nieruchomości nie przystąpi bez usprawiedliwienia do zawarcia umowy w miejscu i w terminie podanych w zawiadomieniu, organizator przetargu może odstąpić od zawarcia umowy, a wpłacone wadium nie podlega zwrotowi. Prezydentowi Miasta Mysłowice przysługuje prawo zamknięcia przetargu bez wybrania którejkolwiek z ofert.
Oferta przetargowa i kryteria jej oceny:
1. Pisemne oferty należy składać w zamkniętych kopertach z napisem „Pisemny przetarg nieograniczony na dzierżawę w roku 2017 nieruchomości Gminy Mysłowice, położonych przy ulicy Rynek w Mysłowicach – ogródek letniej konsumpcji nr ….”, najpóźniej do dnia 16 marca 2017 roku do godz. 15.00 w pokoju nr 407 na III piętrze budynku Urzędu Miasta Mysłowice przy ul. Powstańców 1 w Mysłowicach.
2. Oferta powinna zawierać:
- imię nazwisko i adres oferenta lub nazwę albo firmę oraz siedzibę, jeżeli oferent jest osobą prawną, lub inny podmiot;
- datę sporządzenia oferty;
- oświadczenie, że oferent zapoznał się z dokumentacją wydzierżawianej nieruchomości, jej stanem faktycznym i prawnym, oraz warunkami przetargu i przyjmuje je bez zastrzeżeń;
- oświadczenie, że oferent zapoznał się z projektem umowy dzierżawy i przyjmuje go bez zastrzeżeń;
- oświadczenie, że oferent zapoznał się z regulaminem przetargu (Zarządzenie Prezydenta Miasta Mysłowice Nr 412/15 z dnia 4 sierpnia 2015 r. w sprawie określenia trybu przeprowadzania przetargów na wydzierżawienie nieruchomości gruntowych stanowiących własność i będących w posiadaniu Gminy Mysłowice;
- oświadczenie, że oferent nie posiada zaległości wobec Gminy Mysłowice z tytułu należności cywilno – prawnych i podatkowych;
- oferowaną stawkę czynszu dzierżawnego netto miesięcznie za 1 m² gruntu wybranej lokalizacji „ogródka letniej konsumpcji”, która nie może być niższa od stawki wywoławczej czynszu dzierżawnego, ani jej równa oraz czasookres na jaki ma być zawarta umowa dzierżawy nie przekraczający okresu od dnia 1 kwietnia 2017 roku do dnia 31 grudnia 2017 roku;
- zaznaczoną na Koncepcji rozlokowania stref dla lokalizacji ogródków letniej konsumpcji na płycie Rynku kolorem czerwonym wybraną lokalizację „ogródka letniej konsumpcji”;
- kserokopię dowodu wniesienia wadium (oryginał do wglądu Komisji);
- aktualne dokumenty (oryginały) wystawione nie wcześniej niż 6 (sześć) miesięcy przed upływem terminu przetargu:
-odpis (wydruk) z Krajowego Rejestru Sądowego w przypadku osób prawnych;
-zaświadczenie (wydruk z CEIDG) o wpisie do Ewidencji Działalności Gospodarczej dla każdego ze wspólników spółki cywilnej, a także umowę spółki cywilnej (wspólnicy spółek cywilnych);
-zaświadczenie (wydruk z CEIDG) o wpisie do ewidencji Działalności Gospodarczej w przypadku osoby fizycznej jako podmiotu prowadzącego działalność gospodarczą;
- osoby reprezentujące uczestników przetargu, winny posiadać udzielone im potwierdzone notarialnie pełnomocnictwa do wzięcia udziału w przetargu (oryginał do wglądu Komisji);
- numer rachunku bankowego, na który zostanie zwrócone wadium, w przypadku gdy oferent nie wygra przetargu.
3. Komisja przetargowa przy wyborze ofert będzie brała pod uwagę następujące kryteria wpływające na wybór najkorzystniejszej oferty – zaoferowaną stawkę czynszu dzierżawnego - 100%.
4. W przypadku złożenia równorzędnych ofert Komisja Przetargowa zorganizuje dodatkowy przetarg ustny ograniczony do oferentów, którzy złożyli te oferty.
5. Prezydentowi Miasta Mysłowice przysługuje prawo zamknięcia przetargu bez wybrania którejkolwiek z ofert.
Informacje dotyczące nieruchomości i sposobu ich zagospodarowania:
- Nieruchomość jest objęta zakazem zabudowy obiektami kubaturowymi i wszelkimi urządzeniami trwale związanymi z gruntem,
- Oferent, który wygra przetarg we własnym zakresie i na własny koszt:
- zobowiązany będzie ustawić „ogródek letniej konsumpcji” we własnym zakresie i z własnych środków finansowych bez możliwości zwrotu poniesionych nakładów zarówno w trakcie trwania umowy jak i po jej wygaśnięciu lub rozwiązaniu. Ustawiany ogródek, obiekty kubaturowe i inne urządzenia oraz elementy zagospodarowania nie mogą być trwale związane z gruntem.
- uzyska zapewnienie dostawy mediów i odbioru nieczystości.
- zapewni właścicielom sieci dostęp do sieci, celem przeprowadzenia konserwacji lub usunięcia awarii, oraz
- zobowiązany będzie do nieodpłatnego udostępniania nieruchomości Wydzierżawiającemu lub instytucjom kultury i sportu miasta Mysłowice do organizacji imprez miejskich, w terminach wcześniej z nimi ustalonych bezpośrednio przez organizatora tych imprez, bez możliwości dochodzenia z tego tytułu roszczeń od Wydzierżawiającego. Ponadto na czas imprez organizator będzie miał prawo wprowadzić firmy zewnętrzne świadczące usługi np.: rozrywkowe, gastronomiczne i inne uznane przez siebie za niezbędne do prawidłowego przebiegu, zamierzonego przebiegu imprezy.
Treść niniejszego ogłoszenia dostępna jest na stronie internetowej miasta oraz Biuletynu Informacji Publicznej, a także na tablicy ogłoszeń Wydziału Gospodarki Nieruchomościami znajdującej się na II piętrze budynku Urzędu Miasta Mysłowice mieszącego się przy ul. Powstańców 1 w Mysłowicach. Wszelkie informacje dotyczące organizowanego przetargu można uzyskać w Wydziale Gospodarki Nieruchomościami, pokój nr 407, III piętro, tel. kontaktowy (32) 31 71 168 w godzinach pracy Urzędu. Informacje w sprawie organizowanych imprez kulturalnych i zasad współpracy można uzyskać w Kancelarii Prezydenta Miasta w Zespole ds. Kultury i Sportu, pokój nr 317, II, piętro tel. kontaktowy (32) 31 71 179 w godzinach pracy Urzędu.
Szczegółowe informacje o możliwości zagospodarowania przedmiotowych nieruchomości można uzyskać w Wydziale Architektury i Budownictwa Urzędu Miasta Mysłowice przy Placu Wolności Nr 2 lub pod nr tel. (32) 31 71 324 w godzinach pracy Urzędu.
Treść ogłoszenia (88.47 KB)









