2018
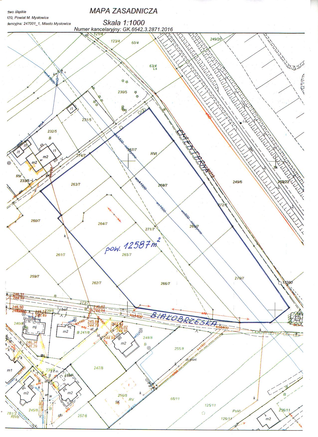
Prezydent Miasta Mysłowice ogłasza trzeci ustny przetarg nieograniczony na sprzedaż nieruchomości niezabudowanej o łącznej pow. 12587 m2, stanowiącej własność Gminy Mysłowice, położonej w Mysłowicach – Kosztowach w rejonie ulic: Białobrzeskiej i Cmentarnej, obejmującej działki na karcie mapy 1 obrębu Kosztowy, oznaczone nr 266/7 o pow. 1531 m2, nr 265/7 o pow. 995 m2, nr 264/7 o pow. 972 m2, nr 263/7 o pow. 911 m2, nr 267/7 o pow. 1456 m2, nr 268/7 o pow. 1619 m2, nr 269/7 o pow. 1466 m2, nr 270/7 o pow. 2230 m2 i nr 271/7 o pow. 1407 m2, zapisane w księdze wieczystej nr KA1L/00026502/0 Sądu Rejonowego w Mysłowicach, z przeznaczeniem pod zabudowę mieszkaniową, zgodną z zapisami planu miejscowego. Przeprowadzone ustne przetargi nieograniczone na sprzedaż w/w nieruchomości tj. pierwszy przetarg w dniu 13.06.2017 r., a drugi przetarg w dniu 24.10.2017 r. - zakończyły się wynikiem negatywnym. Zgodnie z uchwalonym przez Radę Miasta Mysłowice uchwałą nr LXV/659/06 z dnia 30 marca 2006 r., miejscowym planem zagospodarowania przestrzennego dzielnicy "Brzezinka Południowa" w Mysłowicach, nin. nieruchomość posiada przeznaczenie ozn. MU IV - tereny zabudowy mieszkaniowej z dopuszczeniem usług jako funkcji uzupełniającej. W planie miejscowym na nieruchomości zaznaczony jest również przebieg magistrali GPW wraz ze strefą ochronną oraz przebieg napowietrznej sieci energetycznej średniego napięcia 20kV. Szczegółowe ustalenia dotyczące warunków zagospodarowania terenu w obszarze stref ochronnych sieci infrastruktury technicznej, należy uzgadniać z zarządcami mediów dla których utworzono strefę. Zagospodarowanie nieruchomości nastąpi na podstawie zapisów nin. planu miejscowego. Zbywana nieruchomość nie jest obciążona prawami osób trzecich i nie jest przedmiotem zobowiązań. Działy III i IV księgi wieczystej prowadzonej dla w/w działek nie zawierają wpisów.
Cena wywoławcza nieruchomości wynosi 1.050.000,-zł
(słownie: jeden milion pięćdziesiąt tysięcy złotych)
Przetarg jest ważny bez względu na liczbę jego uczestników, jeżeli przynajmniej jeden uczestnik przetargu zaoferuje co najmniej jedno postąpienie powyżej ceny wywoławczej nieruchomości. O wysokości postąpienia decydują uczestnicy przetargu z tym, że postąpienie w przetargu nie może wynosić mniej niż 1% ceny wywoławczej nieruchomości, z zaokrągleniem w górę do pełnych dziesiątek złotych. Cena osiągnięta w przetargu za nieruchomość podlega zapłacie nie później niż do dnia zawarcia notarialnej umowy przenoszącej własność nieruchomości. Do wylicytowanej ceny sprzedaży, zostanie doliczony podatek VAT według stawki obowiązującej na dzień sprzedaży (na dzień ogłaszania przetargu podatek VAT wynosi 23%). Osoba, która wygra przetarg, zobowiązana będzie do zapłaty wylicytowanej ceny sprzedaży nieruchomości wraz z należnym podatkiem VAT w całości, nie później niż do dnia zawarcia notarialnej umowy sprzedaży nieruchomości, na konto Urzędu Miasta Mysłowice, wskazane w zawiadomieniu o miejscu i terminie zawarcia umowy sprzedaży. Za potwierdzenie wpłaty przyjmuje się datę uznania wskazanego rachunku bankowego Urzędu Miasta Mysłowice.
Przetarg odbędzie się w dniu 20 marca 2018 r. o godz. 10.00 w sali nr 204
Urzędu Miasta w Mysłowicach przy ul. Powstańców 1.
W przetargu mogą brać udział osoby, które najpóźniej do dnia 14 marca 2018 r. wniosą wadium w pieniądzu w wysokości 210.000,-zł (słownie: dwieście dziesięć tysięcy złotych) wpłacając je na konto depozytowe Urzędu Miasta Mysłowice Nr 13 1050 1214 1000 0023 5654 6974 ING Bank Śląski, z podaniem na przelewie oznaczenia nieruchomości. Za datę wniesienia wadium uważa się datę wpływu środków pieniężnych na powyższy rachunek bankowy. Wadium wpłacone przez uczestnika przetargu, który przetarg wygra zostanie zaliczone na poczet ceny nabycia nieruchomości, w dniu zapłaty reszty ceny sprzedaży. Pozostałym uczestnikom przetargu wadium jest zwracane w terminie 3 dni od dnia zamknięcia przetargu (bez oprocentowania), na konto przez nich wskazane. Organizator przetargu jest obowiązany zawiadomić osobę ustaloną jako nabywca nieruchomości o miejscu i terminie zawarcia umowy sprzedaży, najpóźniej w ciągu 21 dni od dnia rozstrzygnięcia przetargu. Wyznaczony termin nie może być krótszy niż 7 dni od dnia doręczenia zawiadomienia. Jeżeli osoba ustalona jako nabywca nieruchomości nie przystąpi bez usprawiedliwienia do zawarcia umowy w miejscu i w terminie podanych w zawiadomieniu, organizator przetargu może odstąpić od zawarcia umowy, a wpłacone wadium nie podlega zwrotowi.
Przed otwarciem przetargu jego uczestnik winien przedłożyć Komisji Przetargowej:
- Dowód wniesienia wadium (oryginał).
 - Dokument tożsamości.
 - Aktualny odpis lub zaświadczenie z właściwego rejestru wystawione nie wcześniej niż 6 miesięcy przed upływem terminu przetargu w przypadku, gdy nieruchomość będzie nabywana przez uczestnika przetargu w ramach prowadzonej działalności gospodarczej, a w przypadku wspólników spółek cywilnych także umowę spółki cywilnej.
 - Oryginał pełnomocnictwa potwierdzonego notarialnie, upoważniającego do działania na każdym etapie postępowania przetargowego, w przypadku osoby reprezentującej uczestnika przetargu.
 - Pisemną zgodę współmałżonka na odpłatne nabycie nieruchomości, w przypadku uczestnika przetargu zamierzającego samodzielnie licytować nieruchomość nabywaną do majątku wspólnego.
 - Oświadczenie, że oferent zapoznał się z dokumentacją zbywanej nieruchomości, jej stanem faktycznym i prawnym oraz z warunkami przetargu i przyjmuje je bez zastrzeżeń.
 - Oświadczenie, że oferent zapoznał się z rozporządzeniem Rady Ministrów z dnia 14 września 2004 r. w sprawie sposobu i trybu przeprowadzania przetargów oraz rokowań na zbycie nieruchomości (tekst jednolity Dz.U. z 2014 r. poz. 1490).
 - Numer i nazwę rachunku bankowego, na które zostanie zwrócone wadium, w przypadku nie wygrania przetargu.
 
Nabycie nieruchomości przez cudzoziemców może nastąpić w przypadku uzyskania zezwolenia Ministra Spraw Wewnętrznych i Administracji, jeżeli wymagają tego przepisy ustawy z dnia 24 marca 1920 r. o nabywaniu nieruchomości przez cudzoziemców. Nabywca zobowiązany jest do ustalenia we własnym zakresie, czy nabycie nieruchomości będącej przedmiotem przetargu wymaga uzyskania zezwolenia.
Dodatkowe informacje dot. zbywanej nieruchomości oraz warunki realizacji zamierzeń inwestycyjnych:
Działki niezabudowane, przeznaczone do sprzedaży łącznie jako jedna zorganizowana całość gospodarcza, o powierzchni 12587 m2, pod zabudowę mieszkaniową z dopuszczeniem usług jako funkcji uzupełniającej, zgodnie z zapisami wyżej wym. planu miejscowego. Na nin. działkach znajdują się miejscowe zakrzewienia i samosiejki. Przez zbywaną nieruchomość przebiegają sieci uzbrojenia terenu wraz ze strefami ochronnymi: czynny wodociąg magistralny woA1600, nieczynny wodociąg woA500, odcinek kanalizacji sanitarnej koA200, napowietrzne linie energetyczne średniego napięcia 20kV, napowietrzne i podziemne sieci energetyczne niskiego napięcia oraz znajdują się na niej słupy energetyczne. Przedmiotowa nieruchomość może być wykorzystana pod zabudowę z zastrzeżeniem, że projektowane obiekty budowlane nie mogą naruszać istniejącego uzbrojenia podziemnego oraz nadziemnego terenu i przy ich lokalizacji zostaną zachowane odpowiednie odległości od sieci. W przypadku, gdyby jednak projektowana zabudowa kolidowała z przebiegającymi sieciami, nabywca zobowiązany będzie we własnym zakresie i na własny koszt dokonać przełożenia sieci, po uzgodnieniu z ich gestorami. Nabywca zobowiązany będzie zapewnić właścicielom sieci dostęp do sieci, celem przeprowadzenia konserwacji lub usunięcia awarii. Zagospodarowanie nieruchomości nastąpi na podstawie zapisów w/w planu miejscowego. Zbywane działki znajdują się na obszarze terenu górniczego, w związku z czym wznoszenie trwałych budowli i urządzeń, wymagać będzie uzgodnienia z właściwym organem państwowego nadzoru górniczego.
Obsługa komunikacyjna nin. terenu może się odbywać bezpośrednio z drogi publicznej ulicy Białobrzeskiej, obejmującej m.in. działkę gminną nr 273/7, przeznaczoną pod pas drogowy ul. Białobrzeskiej, bądź z ulicy Cmentarnej, obejmującej m.in. działkę gminną nr 272/7, przeznaczoną pod pas drogowy ul. Cmentarnej. Lokalizację zjazdu nabywca uzgodni z zarządcą dróg w odrębnym postępowaniu.
Nabywca zobowiązany będzie we własnym zakresie i na własny koszt:
- Wykonać badanie geotechniczne gruntu;
 - W razie potrzeby dokonać drenażu i odwodnienia nieruchomości oraz uporządkować teren;
 - W razie konieczności dokonać ewentualnej wycinki drzew i krzewów kolidujących z planowaną zabudową (koszty i opłaty z tym związane ponosi nabywca);
 - Wykonać uzgodnienia branżowe przebiegu sieci uzbrojenia terenu oraz zrealizować niezbędne dla zamierzonej inwestycji uzbrojenie techniczne i uzyskać we własnym zakresie zapewnienia dostawy mediów oraz odbioru ścieków, a także wód opadowych;
 - Dokonać przebudowy sieci uzbrojenia terenu, w uzgodnieniu z właścicielem sieci, w przypadku gdy zajdzie taka konieczność;
 - Wykonać dojazd /wjazd do działek nabytych w przetargu.
 
W przypadku wystąpienia w obrębie nabytych działek sieci nie ujawnionych na istniejących mapach i dokumentach, a kolidujących z inwestycją, Miasto Mysłowice nie będzie ponosiło z tego tytułu żadnej odpowiedzialności.
Nabywca zobowiązany również będą do poniesienia w całości kosztów notarialnych oraz kosztów i opłat sądowych związanych z nabyciem nieruchomości.
Treść nin. ogłoszenia dostępna jest na stronie internetowej miasta i w Biuletynie Informacji Publicznej oraz na tablicy ogłoszeń w siedzibie Urzędu Miasta Mysłowice (na II piętrze) obok pok. 302 Wydziału Gospodarki Nieruchomościami, w którym również można zapoznać się z dokumentacją zbywanej nieruchomości tel. 32 31 71 236. Szczegółowych informacji o możliwości zabudowy nieruchomości można uzyskać w Wydziale Architektury i Budownictwa Urzędu Miasta w Mysłowicach przy Placu Wolności 2, tel. 32 31 71 324 (w godz. pracy urzędu).
 Treść ogłoszenia  (68.68 KB)





							
							
							
							
							
							
							
							
							
							



