2018
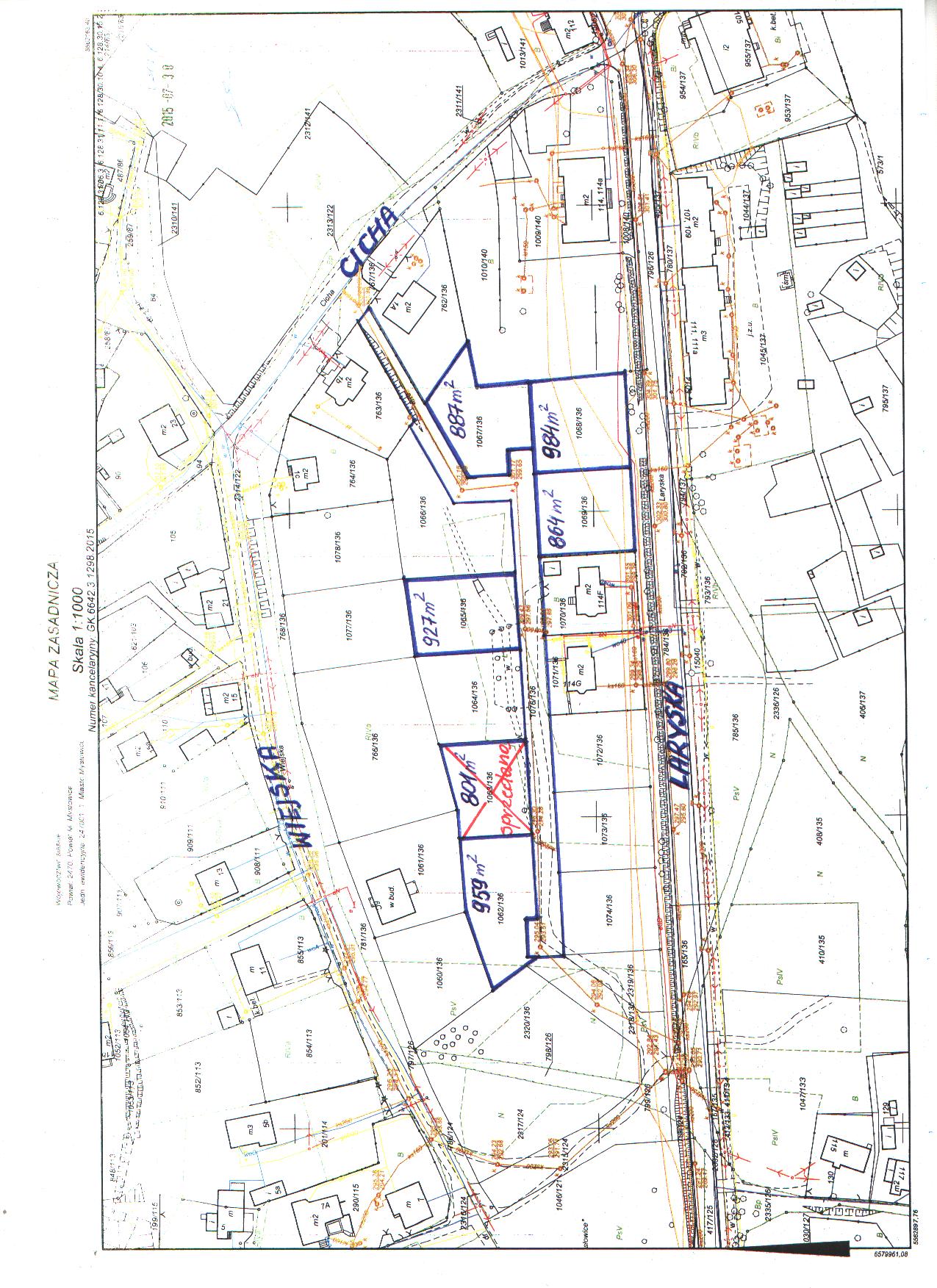
Prezydent Maista Mysłowice ogłasza ustny przetarg nieograniczony na sprzedaż niżej wym. działki niezabudowanej, stanowiącej własność Gminy Mysłowice, położonej w Mysłowicach-Laryszu w rejonie ulic: Laryskiej i Cichej, zapisanej w księdze wieczystej nr KA1L/00011094/8, przeznaczonej pod zabudowę mieszkaniową jednorodzinną wraz ze sprzedażą udziałów w działce nr 1076/136 o pow. 1936 m2, zapisanej w księdze wieczystej nr KA1L/00038551/5 Sądu Rejonowego w Mysłowicach, przeznaczonej pod wewnętrzną drogę dojazdową.
| 
				 
 L.p  | 
			
				 Numery działek na k.m.1 obrębu Brzezinka i powierzchnie  | 
			
				 Łączna cena wywoławcza nieruchomości pod zabudowę i udziału w drodze (netto)  | 
			
				 Wysokość wadium  | 
		
| 
				 1.  | 
			
				 2.  | 
			
				 3.  | 
			
				 4.  | 
		
| 
				 
 1.  | 
			
				 nr 1062/136 o pow. 959 m2 + udział 1/13 cz. w działce nr 1076/136 o pow. 1936 m2  | 
			
				 
 100.000,-zł  | 
			
				 
 20.000,-zł  | 
		
Zgodnie z uchwalonym przez Radę Miasta Mysłowice uchwałą nr LIV/557/2005 z dnia 24 listopada 2005 r., obowiązującym miejscowym planem zagospodarowania przestrzennego dzielnicy „Morgi Zachód” w Mysłowicach, przedmiotowe działki posiadają przeznaczenie: MU II – tereny mieszkaniowo - usługowe - zabudowa jednorodzinna z dopuszczeniem usług. Zbywana działka znajduje się na obszarze terenu górniczego, w związku z czym wznoszenie trwałych budowli i urządzeń, zgodnie z zapisami planu miejscowego, wymaga uzgodnienia z właściwym organem państwowego nadzoru górniczego. Zagospodarowanie nin. nieruchomości nastąpi na podstawie zapisów planu miejscowego. Zbywana w/w działka oraz udziały Gminy Mysłowice w działce nr 1076/136, nie są obciążone prawami osób trzecich i nie są przedmiotem zobowiązań.
Przetarg jest ważny bez względu na liczbę jego uczestników, jeżeli przynajmniej jeden uczestnik przetargu zaoferuje co najmniej jedno postąpienie powyżej ceny wywoławczej nieruchomości. O wysokości postąpienia decydują uczestnicy przetargu z tym, że postąpienie w przetargu nie może wynosić mniej niż 1% ceny wywoławczej nieruchomości, z zaokrągleniem w górę do pełnych dziesiątek złotych. Cena osiągnięta w przetargu za nieruchomość podlega zapłacie nie później niż do dnia zawarcia notarialnej umowy przenoszącej własność nieruchomości. Do wylicytowanej ceny sprzedaży, zostanie doliczony podatek VAT według stawki obowiązującej na dzień sprzedaży (na dzień ogłaszania przetargu podatek VAT wynosi 23%). Osoba, która wygra przetarg, zobowiązana będzie do zapłaty wylicytowanej ceny sprzedaży nieruchomości wraz z należnym podatkiem VAT w całości, nie później niż do dnia zawarcia notarialnej umowy sprzedaży nieruchomości, na konto Urzędu Miasta Mysłowice, wskazane w zawiadomieniu o miejscu i terminie zawarcia umowy sprzedaży. Za potwierdzenie wpłaty przyjmuje się datę uznania wskazanego rachunku bankowego Urzędu Miasta Mysłowice. Przetarg odbędzie się w dniu 18 września 2018 r. o godz. 10.00 w sali nr 204 ,Urzędu Miasta w Mysłowicach przy ul. Powstańców 1. W przetargu mogą brać udział osoby, które najpóźniej do dnia 12 września 2018 r. wniosą wyżej wym. wadium w pieniądzu wpłacając je na konto depozytowe Urzędu Miasta Mysłowice Nr 13 1050 1214 1000 0023 5654 6974 ING Bank Śląski, z podaniem w/w nr działki. Za datę wniesienia wadium uważa się datę wpływu środków pieniężnych na powyższy rachunek bankowy. Wadium wpłacone przez uczestnika przetargu, który przetarg wygra zostanie zaliczone na poczet ceny nabycia nieruchomości, w dniu zapłaty reszty ceny sprzedaży. Pozostałym uczestnikom przetargu wadium jest zwracane w terminie 3 dni od dnia zamknięcia przetargu (bez oprocentowania), na konto przez nich wskazane. Organizator przetargu jest obowiązany zawiadomić osobę ustaloną jako nabywca nieruchomości o miejscu i terminie zawarcia umowy sprzedaży, najpóźniej w ciągu 21 dni od dnia rozstrzygnięcia przetargu. Wyznaczony termin nie może być krótszy niż 7 dni od dnia doręczenia zawiadomienia. Jeżeli osoba ustalona jako nabywca nieruchomości nie przystąpi bez usprawiedliwienia do zawarcia umowy w miejscu i w terminie podanych w zawiadomieniu, organizator przetargu może odstąpić od zawarcia umowy, a wpłacone wadium nie podlega zwrotowi.
Przed otwarciem przetargu jego uczestnik winien przedłożyć Komisji Przetargowej:
- Dowód wniesienia wadium (oryginał).
 
- 
		
Dokument tożsamości.
 - 
		
Aktualny wypis lub zaświadczenie z właściwego rejestru wystawione nie wcześniej niż 6 miesięcy przed upływem terminu przetargu w przypadku, gdy nieruchomość będzie nabywana przez uczestnika przetargu w ramach prowadzonej działalności gospodarczej, a w przypadku wspólników spółek cywilnych także umowę spółki cywilnej.
 - 
		
Oryginał pełnomocnictwa potwierdzonego notarialnie, upoważniającego do działania na każdym etapie postępowania przetargowego, w przypadku osoby reprezentującej uczestnika przetargu.
 - 
		
Pisemną zgodę współmałżonka na odpłatne nabycie nieruchomości, w przypadku uczestnika przetargu zamierzającego samodzielnie licytować nieruchomość nabywaną do majątku wspólnego.
 - 
		
Oświadczenie, że oferent zapoznał się z dokumentacją zbywanej nieruchomości, jej stanem faktycznym i prawnym oraz z warunkami przetargu i przyjmuje je bez zastrzeżeń.
 - 
		
Oświadczenie, że oferent wyraża zgodę na przetwarzanie swoich danych osobowych, w tym również ich udostępnienie do publicznej wiadomości w zakresie zbycia przedmiotowej nieruchomości w drodze przetargu.
 - 
		
Numer i nazwę rachunku bankowego, na które zostanie zwrócone wadium, w przypadku nie wygrania przetargu.
 
Nabycie nieruchomości przez cudzoziemców może nastąpić w przypadku uzyskania zezwolenia Ministra Spraw Wewnętrznych i Administracji, jeżeli wymagają tego przepisy ustawy z dnia 24 marca 1920 r. o nabywaniu nieruchomości przez cudzoziemców. Nabywca zobowiązany jest do ustalenia we własnym zakresie, czy nabycie nieruchomości będącej przedmiotem przetargu wymaga uzyskania zezwolenia.
Dodatkowe informacje dot. zbywanej działki oraz warunki realizacji zamierzeń inwestycyjnych:
- Nieruchomość niezabudowana przeznaczona pod zabudowę mieszkaniową jednorodzinną, zgodnie z zapisami obowiązującego miejscowego planu zagospodarowania przestrzennego. Zbywany teren znajduje się w granicach obszaru objętego przystąpieniem do sporządzenia nowego planu zagospodarowania przestrzennego Morgi w Mysłowicach (na podstawie uchwały Rady Miasta Mysłowice nr XL/602/17 z dnia 29.06.2017 r.). W koncepcji opracowywanego nowego planu miejscowego, planuje się utrzymanie dotychczasowego przeznaczenia nieruchomości na cele mieszkaniowo – usługowe. Zagospodarowanie nin. nieruchomości nastąpi na podstawie zapisów planu miejscowego.
 
- Zbywana działka nr 1062/136 posiada nieregularny kształt, porośnięta jest zielenią niską i częściowo wysoką (samosiejkami i drzewami). W 2014 r. na odcinku od ul. Cichej do ul. Laryskiej, została wybudowana nowa kanalizacja deszczowa z włączeniem do istniejącej kanalizacji w ulicy Laryskiej. Kanalizacja ta została wybudowana m.in. na działce nr 1076/136, stanowiącej wewnętrzną drogę dojazdową do w/w działki (istnieje możliwość włączenia drenażu do nowo wybudowanej na działce nr 1076/136 kanalizacji deszczowej, celem odbioru wód opadowych z powierzchni nin. działek). Współwłaściciele działki drogowej nr 1076/136, zobowiązani będą zapewnić właścicielowi sieci kanalizacyjnej dostęp do tej sieci, celem przeprowadzenia konserwacji lub usunięcia awarii.
 
- Obsługa komunikacyjna zbywanej nieruchomości może się odbywać od ul. Cichej bądź od ul. Laryskiej. Podstawowa obsługa komunikacyjna nin. działki zalecana jest od ul. Laryskiej, po działce nr 2318/136, stanowiącej ogólnodostępną wewnętrzną drogę gminną, a następnie po działce nr 1076/136, w której Gmina Mysłowice sprzedaje swoje udziały. Lokalizację zjazdu z ul. Laryskiej nabywca uzgodni z zarządcą drogi w odrębnym postępowaniu
 
- Nabywca zobowiązany będzie we własnym zakresie i na własny koszt:
 
- Wykonać badanie geotechniczne gruntu i dokonać odwodnienia (drenażu) działki;
- W razie potrzeby wyrównać i uporządkować teren oraz dokonać ewentualnej wycinki drzew i krzewów kolidujących z planowaną zabudową, po wcześniejszym uzyskaniu stosownej decyzji na wycinkę (koszty i opłaty z tym związane ponosi nabywca);
- Wykonać uzgodnienia branżowe przebiegu sieci uzbrojenia terenu oraz zrealizować niezbędne dla zamierzonej inwestycji uzbrojenie techniczne i uzyskać we własnym zakresie zapewnienia dostawy mediów oraz odbioru ścieków, a także wód opadowych;
- Wspólnie z pozostałymi współwłaścicielami działki nr 1076/136, wykonać na tej działce, wewnętrzną drogę dojazdową do działki nabytej w przetargu.
- W przypadku wystąpienia w obrębie nabytej działki sieci nie ujawnionych na istniejących mapach i dokumentach, a kolidujących z inwestycją, Miasto Mysłowice nie będzie ponosiło z tego tytułu żadnej odpowiedzialności.
 
- Nabywca zobowiązany również będzie do poniesienia w całości kosztów notarialnych oraz kosztów i opłat sądowych związanych z nabyciem nieruchomości.
 
Treść nin. ogłoszenia dostępna jest na stronie internetowej www.myslowice.pl/tereny inwestycyjne/ ogłoszenia o przetargach i w Biuletynie Informacji Publicznej www.bip.myslowice.pl/nieruchomości/ ogłoszenia o przetargach na sprzedaż lub dzierżawę nieruchomości oraz na tablicy ogłoszeń w siedzibie Urzędu Miasta Mysłowice (na II piętrze) obok pok. 302 Wydziału Gospodarki Nieruchomościami, w którym również można zapoznać się z dokumentacją zbywanej nieruchomości tel. 32 31 71 236. Szczegółowych informacji o możliwości zabudowy i zagospodarowania działki można uzyskać w Wydziale Architektury i Budownictwa Urzędu Miasta w Mysłowicach tel. 32 31 71 324 (w godz. pracy urzędu).





							
							
							
							
							
							
							
							
							
							
							
							
							
							
							



