2019
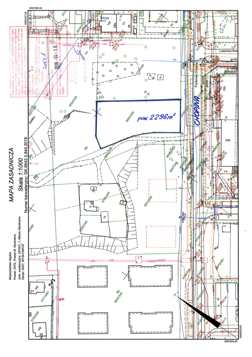
Prezydent Miasta Mysłowice ogłasza ustny przetarg nieograniczony na sprzedaż nieruchomości niezabudowanej, stanowiącej własność Gminy Mysłowice, położonej w Mysłowicach przy ul. Fryderyka Chopina, obejmującej działkę nr 9053/349 o pow. 2296 m2 na karcie mapy 3 obrębu 0007 Mysłowice, zapisanej w księdze wieczystej nr KA1L/00021357/3 Sądu Rejonowego w Mysłowicach, z przeznaczeniem na cele zgodne ze Studium Uwarunkowań i Kierunków Zagospodarowania Przestrzennego Miasta Mysłowice tj. pod zabudowę mieszkaniową wielorodzinną i usługi rangi ogólnomiejskiej. W/w nieruchomość nie posiada pokrycia miejscowym planem zagospodarowania przestrzennego miasta. W obowiązującym Studium Uwarunkowań i Kierunków Zagospodarowania Przestrzennego Miasta Mysłowice, uchwalonym przez Radę Miasta Mysłowice uchwałą Nr XXX/656/08 z dnia 30 października 2008 r., zbywana działka położona jest w strefie ozn. symbolem D.7.MWU – tereny zabudowy mieszanej: mieszkaniowej wielorodzinnej i usług rangi ogólnomiejskiej oraz minimalnie w strefie oznaczonej symbolem D.6.ZU – tereny zieleni urządzonej (północno – zachodnie naroże działki). Zagospodarowanie nieruchomości i jej zabudowa nastąpi na podstawie szczegółowych warunków, które zostaną określone w decyzji o warunkach zabudowy, wydanej na wniosek nabywcy. Nin. działka znajduje się w granicach byłego terenu górniczego, w związku z czym przy ustalaniu warunków zabudowy, konieczne będzie uzyskanie stanowiska właściwego państwowego organu nadzoru górniczego. Zbywana działka nie jest obciążona prawami osób trzecich i nie jest przedmiotem zobowiązań. Działy III i IV księgi wieczystej prowadzonej dla wyżej wym. nieruchomości nie zawierają wpisów.
Cena wywoławcza nieruchomości wynosi 850.000,-zł
(słownie złotych: osiemset pięćdziesiąt tysięcy)
Przetarg jest ważny bez względu na liczbę jego uczestników, jeżeli przynajmniej jeden uczestnik przetargu zaoferuje co najmniej jedno postąpienie powyżej ceny wywoławczej nieruchomości. O wysokości postąpienia decydują uczestnicy przetargu z tym, że postąpienie w przetargu nie może wynosić mniej niż 1% ceny wywoławczej nieruchomości, z zaokrągleniem w górę do pełnych dziesiątek złotych. Cena osiągnięta w przetargu za nieruchomość podlega zapłacie nie później niż do dnia zawarcia notarialnej umowy przenoszącej własność nieruchomości. Do wylicytowanej ceny sprzedaży, zostanie doliczony podatek VAT według stawki obowiązującej na dzień sprzedaży (na dzień ogłaszania przetargu podatek VAT wynosi 23%). Osoba, która wygra przetarg, zobowiązana będzie do zapłaty wylicytowanej ceny sprzedaży nieruchomości wraz z należnym podatkiem VAT w całości, nie później niż do dnia zawarcia notarialnej umowy sprzedaży nieruchomości, na konto Urzędu Miasta Mysłowice, wskazane w zawiadomieniu o miejscu i terminie zawarcia umowy sprzedaży. Za potwierdzenie wpłaty przyjmuje się datę uznania wskazanego rachunku bankowego Urzędu Miasta Mysłowice.
Przetarg odbędzie się w dniu 12 listopada 2019 r. o godz. 10.00 w sali nr 204
Urzędu Miasta w Mysłowicach przy ul. Powstańców 1.
W przetargu mogą brać udział osoby, które najpóźniej do dnia 6 listopada 2019 r. wniosą wadium w pieniądzu w wysokości 170.000,-zł (słownie: sto siedemdziesiąt tysięcy złotych), wpłacając je na konto depozytowe Urzędu Miasta Mysłowice Nr 13 1050 1214 1000 0023 5654 6974 ING Bank Śląski, z podaniem w/w nr działki. Za datę wniesienia wadium uważa się datę wpływu środków pieniężnych na powyższy rachunek bankowy. Wadium wpłacone przez uczestnika przetargu, który przetarg wygra zostanie zaliczone na poczet ceny nabycia nieruchomości, w dniu zapłaty reszty ceny sprzedaży. Pozostałym uczestnikom przetargu wadium jest zwracane w terminie 3 dni od dnia zamknięcia przetargu (bez oprocentowania), na konto przez nich wskazane. Organizator przetargu jest obowiązany zawiadomić osobę ustaloną jako nabywca nieruchomości o miejscu i terminie zawarcia umowy sprzedaży, najpóźniej w ciągu 21 dni od dnia rozstrzygnięcia przetargu. Wyznaczony termin nie może być krótszy niż 7 dni od dnia doręczenia zawiadomienia. Jeżeli osoba ustalona jako nabywca nieruchomości nie przystąpi bez usprawiedliwienia do zawarcia umowy w miejscu i w terminie podanych w zawiadomieniu, organizator przetargu może odstąpić od zawarcia umowy, a wpłacone wadium nie podlega zwrotowi.
Przed otwarciem przetargu jego uczestnik winien przedłożyć Komisji Przetargowej:
-
Dowód wniesienia wadium (oryginał).
-
Dokument tożsamości.
-
Aktualny wypis lub zaświadczenie z właściwego rejestru wystawione nie wcześniej niż 6 miesięcy przed upływem terminu przetargu w przypadku, gdy nieruchomość będzie nabywana przez uczestnika przetargu w ramach prowadzonej działalności gospodarczej, a w przypadku wspólników spółek cywilnych także umowę spółki cywilnej.
-
Oryginał pełnomocnictwa potwierdzonego notarialnie, upoważniającego do działania na każdym etapie postępowania przetargowego, w przypadku osoby reprezentującej uczestnika przetargu.
-
Pisemną zgodę współmałżonka na odpłatne nabycie nieruchomości, w przypadku uczestnika przetargu zamierzającego samodzielnie licytować nieruchomość nabywaną do majątku wspólnego.
-
Oświadczenie, że oferent zapoznał się z dokumentacją zbywanej nieruchomości, jej stanem faktycznym i prawnym oraz z warunkami przetargu i przyjmuje je bez zastrzeżeń.
-
Oświadczenie, że oferent wyraża zgodę na przetwarzanie swoich danych osobowych, w tym również ich udostępnienie do publicznej wiadomości w zakresie zbycia przedmiotowej nieruchomości w drodze przetargu.
-
Numer i nazwę rachunku bankowego, na które zostanie zwrócone wadium, w przypadku nie wygrania przetargu.
Nabycie nieruchomości przez cudzoziemców może nastąpić w przypadku uzyskania zezwolenia Ministra Spraw Wewnętrznych i Administracji, jeżeli wymagają tego przepisy ustawy z dnia 24 marca 1920 r. o nabywaniu nieruchomości przez cudzoziemców. Nabywca zobowiązany jest do ustalenia we własnym zakresie, czy nabycie nieruchomości będącej przedmiotem przetargu wymaga uzyskania zezwolenia.
Dodatkowe informacje dot. zbywanej działki oraz warunki realizacji zamierzeń inwestycyjnych:
1. Nieruchomość niezabudowana, przeznaczona do sprzedaży na cele zgodne z zapisami obowiązującego Studium Uwarunkowań i Kierunków Zagospodarowania Przestrzennego Miasta Mysłowice tj. pod zabudowę mieszkaniową wielorodzinną i usługi rangi ogólnomiejskiej (w tym zabudowę usługową związaną z ochroną zdrowia, edukacją). Na zbywanym terenie występują zróżnicowane wysokości – teren lekko pochyły, pofałdowany, porośnięty samosiejkami drzew i krzewów, wymaga uporządkowania. Teren działki został objęty decyzją Prezydenta Miasta Tychy Nr 284/2017 z dnia 20.10.2017 r. ustalającą warunki zabudowy dla inwestycji pod nazwą: Budowa szpitala na parceli nr 9053/349, położonej przy ul. Fryderyka Chopina w Mysłowicach. Zagospodarowanie nieruchomości i jej zabudowa nastąpi na podstawie szczegółowych warunków, które zostaną określone w decyzji o warunkach zabudowy, wydanej na wniosek nabywcy.
2. Obsługa komunikacyjna zbywanej nieruchomości może się odbywać od ul. Fryderyka Chopina, poprzez istniejący w terenie zjazd znajdujący się na działkach gminnych nr 9052/349 i nr 9048/348 (śladem istniejącej nie urządzonej drogi gruntowej, stanowiącej ogólnodostępną wewnętrzną drogę gminną). Lokalizację zjazdu nabywca uzgodni z zarządcą drogi w odrębnym postępowaniu.
3. Nabywca zobowiązany będzie we własnym zakresie i na własny koszt: W razie konieczności zniwelować i uporządkować teren; Uzyskać aktualne uzgodnienia branżowe przebiegu sieci i urządzeń uzbrojenia terenu; Wykonać niezbędne dla zamierzonej inwestycji uzbrojenie techniczne i uzyskać we własnym zakresie zapewnienia dostawy mediów oraz odbioru ścieków i wód opadowych; W przypadku ewentualnej kolizji planowanej zabudowy z zielenią, wystąpić o stosowne zezwolenie na usunięcie drzew i krzewów (koszty i opłaty związane z wycinką ponosi nabywca); Wykonać raport oceny oddziaływania inwestycji na środowisko (w razie wystąpienia takiego obowiązku); Przebudować chodnik zlokalizowany wzdłuż istniejącej ulicy w miejscach zjazdów do posesji (w przypadku gdy zajdzie taka konieczność - przejazdy te winny być wykonane z wykonaniem obniżeń na zjazdach oraz odpowiednią przebudową ich konstrukcji); Wykonać drogę dojazdową do nieruchomości nabytej w przetargu w odrębnym uzgodnieniu z zarządcą drogi i w oparciu o właściwe postępowanie administracyjne.
4. W przypadku wystąpienia w obrębie nabytej działki sieci nie ujawnionych na istniejących mapach i dokumentach, a kolidujących z inwestycją, jak też wystąpienia zmian w przepisach w tym dotyczących zagospodarowania przestrzennego, Miasto Mysłowice nie będzie ponosiło z tego tytułu żadnej odpowiedzialności.
5. Nabywca zobowiązany również będzie do poniesienia w całości kosztów notarialnych oraz kosztów i opłat sądowych związanych z nabyciem nieruchomości.
Treść nin. ogłoszenia dostępna jest na stronie internetowej miasta i w Biuletynie Informacji Publicznej oraz na tablicy ogłoszeń w siedzibie Urzędu Miasta Mysłowice przy ul. Powstańców 1 (na II piętrze) obok pok. 302 Wydziału Geodezji i Gospodarki Nieruchomościami, w którym również można zapoznać się z dokumentacją zbywanej nieruchomości tel. 32 31 71 236. Szczegółowych informacji o możliwości zabudowy i zagospodarowania działki można uzyskać w Wydziale Architektury, Budownictwa i Planowania Urzędu Miasta w Mysłowicach, tel. 32 31 71 324 (w godz. pracy urzędu).
Treść ogłoszenia (68.11 KB)









