2021
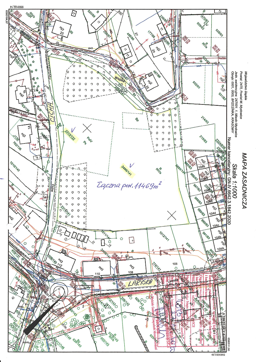
Prezydent Miasta Mysłowice ogłasza drugi ustny przetarg nieograniczony na sprzedaż nieruchomości niezabudowanych o łącznej pow. 11469 m2, stanowiących własność Gminy Mysłowice, położonych w Mysłowicach - Laryszu u zbiegu ulic: Cichej i Wiejskiej, obejmujących działki na arkuszu mapy 1 obrębu 0001 Brzezinka tj. działkę nr 2486/141 o pow. 11345 m2 zapisaną w księdze wieczystej nr KA1L/00026232/6 oraz działkę nr 2313/122 o pow. 124 m2 zapisaną w księdze wieczystej nr KA1L/00026193/0, z przeznaczeniem pod zabudowę mieszkaniową wielorodzinną. Nin. księgi wieczyste prowadzone są przez Sąd Rejonowy w Mysłowicach. Przeprowadzony w dniu 27.04.2021 r. pierwszy ustny przetarg nieograniczony na sprzedaż nin. nieruchomości - zakończył się wynikiem negatywnym. Zgodnie z uchwalonym przez Radę Miasta Mysłowice uchwałą nr XXI/267/20 z dnia 13 lutego 2020 roku, miejscowym planem zagospodarowania przestrzennego Morgi w Mysłowicach, w/w działki położone są w strefie oznaczonej symbolem: 2.MW – tereny zabudowy mieszkaniowej wielorodzinnej. Zagospodarowanie nin. nieruchomości nastąpi na podstawie szczegółowych ustaleń wyżej wym. planu miejscowego. Zbywane nieruchomości nie są obciążona prawami osób trzecich i nie są przedmiotem zobowiązań. Działy III i IV ksiąg wieczystych prowadzonych dla wyżej wym. działek nie zawierają wpisów.
Cena wywoławcza nieruchomości wynosi 2.240.000,-zł
(słownie: dwa miliony dwieście czterdzieści tysięcy złotych)
Przetarg jest ważny bez względu na liczbę jego uczestników, jeżeli przynajmniej jeden uczestnik przetargu zaoferuje co najmniej jedno postąpienie powyżej ceny wywoławczej nieruchomości. O wysokości postąpienia decydują uczestnicy przetargu z tym, że postąpienie w przetargu nie może wynosić mniej niż 1% ceny wywoławczej nieruchomości, z zaokrągleniem w górę do pełnych dziesiątek złotych. Cena osiągnięta w przetargu za nieruchomość podlega zapłacie nie później niż do dnia zawarcia notarialnej umowy przenoszącej własność nieruchomości. Do wylicytowanej ceny sprzedaży, zostanie doliczony podatek VAT według stawki obowiązującej na dzień sprzedaży (na dzień ogłaszania przetargu podatek VAT wynosi 23%). Osoba, która wygra przetarg, zobowiązana będzie do zapłaty wylicytowanej ceny sprzedaży nieruchomości wraz z należnym podatkiem VAT w całości, nie później niż do dnia zawarcia notarialnej umowy sprzedaży nieruchomości, na konto Urzędu Miasta Mysłowice, wskazane w zawiadomieniu o miejscu i terminie zawarcia umowy sprzedaży. Za potwierdzenie wpłaty przyjmuje się datę uznania wskazanego rachunku bankowego Urzędu Miasta Mysłowice.
Przetarg odbędzie się w dniu 24 sierpnia 2021 r. o godz. 10.30 w sali nr 204
Urzędu Miasta w Mysłowicach przy ul. Powstańców 1.
W przetargu mogą brać udział osoby, które najpóźniej do dnia 18 sierpnia 2021 r. wniosą wadium w pieniądzu w wysokości 448.000,-zł (słownie: czterysta czterdzieści osiem tysięcy złotych) wpłacając je na konto depozytowe Urzędu Miasta Mysłowice Nr 13 1050 1214 1000 0023 5654 6974 ING Bank Śląski, z podaniem w/w nr działek. Za datę wniesienia wadium uważa się datę wpływu środków pieniężnych na powyższy rachunek bankowy. Wadium wpłacone przez uczestnika przetargu, który przetarg wygra zostanie zaliczone na poczet ceny nabycia nieruchomości, w dniu zapłaty reszty ceny sprzedaży. Pozostałym uczestnikom przetargu wadium jest zwracane w terminie 3 dni od dnia zamknięcia przetargu (bez oprocentowania), na konto przez nich wskazane. Organizator przetargu jest obowiązany zawiadomić osobę ustaloną jako nabywca nieruchomości o miejscu i terminie zawarcia umowy sprzedaży, najpóźniej w ciągu 21 dni od dnia rozstrzygnięcia przetargu. Wyznaczony termin nie może być krótszy niż 7 dni od dnia doręczenia zawiadomienia. Jeżeli osoba ustalona jako nabywca nieruchomości nie przystąpi bez usprawiedliwienia do zawarcia umowy w miejscu i w terminie podanych w zawiadomieniu, organizator przetargu może odstąpić od zawarcia umowy, a wpłacone wadium nie podlega zwrotowi.
Przed otwarciem przetargu jego uczestnik winien przedłożyć Komisji Przetargowej:
-
Dowód wniesienia wadium (oryginał).
-
Dokument tożsamości.
-
Aktualny wypis lub zaświadczenie z właściwego rejestru wystawione nie wcześniej niż 6 miesięcy przed upływem terminu przetargu w przypadku, gdy nieruchomość będzie nabywana przez uczestnika przetargu w ramach prowadzonej działalności gospodarczej, a w przypadku wspólników spółek cywilnych także umowę spółki cywilnej.
-
Oryginał pełnomocnictwa potwierdzonego notarialnie, upoważniającego do działania na każdym etapie postępowania przetargowego, w przypadku osoby reprezentującej uczestnika przetargu.
-
Pisemną zgodę współmałżonka na odpłatne nabycie nieruchomości, w przypadku uczestnika przetargu zamierzającego samodzielnie licytować nieruchomość nabywaną do majątku wspólnego.
-
Oświadczenie, że oferent zapoznał się z dokumentacją zbywanej nieruchomości, jej stanem faktycznym i prawnym oraz z warunkami przetargu i przyjmuje je bez zastrzeżeń.
-
Oświadczenie, że oferent wyraża zgodę na przetwarzanie swoich danych osobowych, w tym również ich udostępnienie do publicznej wiadomości w zakresie zbycia przedmiotowej nieruchomości w drodze przetargu.
-
Numer i nazwę rachunku bankowego, na które zostanie zwrócone wadium, w przypadku nie wygrania przetargu.
Nabycie nieruchomości przez cudzoziemców może nastąpić w przypadku uzyskania zezwolenia ministra właściwego do spraw wewnętrznych, jeżeli wymagają tego przepisy ustawy z dnia 24 marca 1920 r. o nabywaniu nieruchomości przez cudzoziemców. Nabywca zobowiązany jest do ustalenia we własnym zakresie, czy nabycie nieruchomości będącej przedmiotem przetargu wymaga uzyskania zezwolenia.
Dodatkowe informacje dot. zbywanych działek oraz warunki realizacji zamierzeń inwestycyjnych:
1. Działki niezabudowane, położone w Mysłowicach – Laryszu u zbiegu ulic: Cichej i Wiejskiej, przeznaczone do sprzedaży łącznie jako jedna zorganizowana całość gospodarcza o ogólnej pow. 11469 m2, pod zabudowę mieszkaniową wielorodzinną, zgodną z zapisami wyżej wym. miejscowego planu zagospodarowania przestrzennego. Zbywany teren posiada kształt nieregularny, porośnięty jest roślinnością wymagającą wycinki (drzewa i krzewy – samosiejki). Przy południowej granicy działki nr 2486/141 znajdują się pozostałości (resztki) po ogródkach, wymagające uporządkowania. Przedmiotowe grunty objęte są wpływami aktualnej eksploatacji górniczej oraz płytkiej eksploatacji dokonanej w przeszłości. W granicach w/w działek oraz w ich sąsiedztwie znajdowały się liczne szyby i szybiki związane z płytką eksploatacją pokładu (na zbywanych gruntach zlokalizowane są 2 zlikwidowane szybiki, nin. teren położony jest częściowo w strefie uskokowej). Powyższe działki znajdują się na obszarze terenu górniczego,w związku z czym wznoszenie trwałych budowli i urządzeń, wymagać będzie uzgodnienia z właściwym organem państwowego nadzoru górniczego. Obsługa komunikacyjna zbywanego terenu może się odbywać z drogi publicznej – ul. Wiejskiej i ul. Cichej. Lokalizację zjazdu nabywca uzgodni z zarządcą drogi w odrębnym postępowaniu.
2. Nabywca zobowiązany będzie we własnym zakresie i na własny koszt: Wykonać badanie geotechniczne gruntu; Dokonać wycinki zieleni, po wcześniejszym uzyskaniu decyzji zezwalającej na usunięcie drzew i krzewów kolidujących z planową inwestycją (ewentualne opłaty z tym związane ponosi nabywca); W razie potrzeby dokonać drenażu i odwodnienia nieruchomości; Uporządkować teren; Uzyskać uzgodnienia branżowe przebiegu sieci i urządzeń uzbrojenia terenu; Zrealizować niezbędne dla zamierzonej inwestycji uzbrojenie techniczne i uzyskać we własnym zakresie zapewnienia dostawy mediów oraz odbioru ścieków i wód opadowych.
3. W przypadku wystąpienia w obrębie nabytych działek sieci nie ujawnionych na istniejących mapach i dokumentach, a kolidujących z inwestycją, Miasto Mysłowice nie będzie ponosiło z tego tytułu żadnej odpowiedzialności.
4. Nabywca zobowiązany również będzie do poniesienia w całości kosztów notarialnych oraz kosztów i opłat sądowych związanych z nabyciem nieruchomości.
Treść nin. ogłoszenia dostępna jest na stronie internetowej w Biuletynie Informacji Publicznej oraz na tablicy ogłoszeń w siedzibie Urzędu Miasta Mysłowice przy ul. Powstańców 1 (na II piętrze) obok pok. 302. Szczegółowych informacji nt. przetargu można uzyskać w Wydziale Geodezji i Gospodarki Nieruchomościami tel. 32 31 71 236 (pok. 311), w którym znajduje się dokumentacja zbywanej nieruchomości. Szczegółowych informacji o możliwości zabudowy i zagospodarowania działek można uzyskać w Wydziale Architektury, Planowania i Strategii Urzędu Miasta w Mysłowicach tel. 32 31 71 320 (w godz. pracy urzędu).
Treść (74.3 KB)









