2023
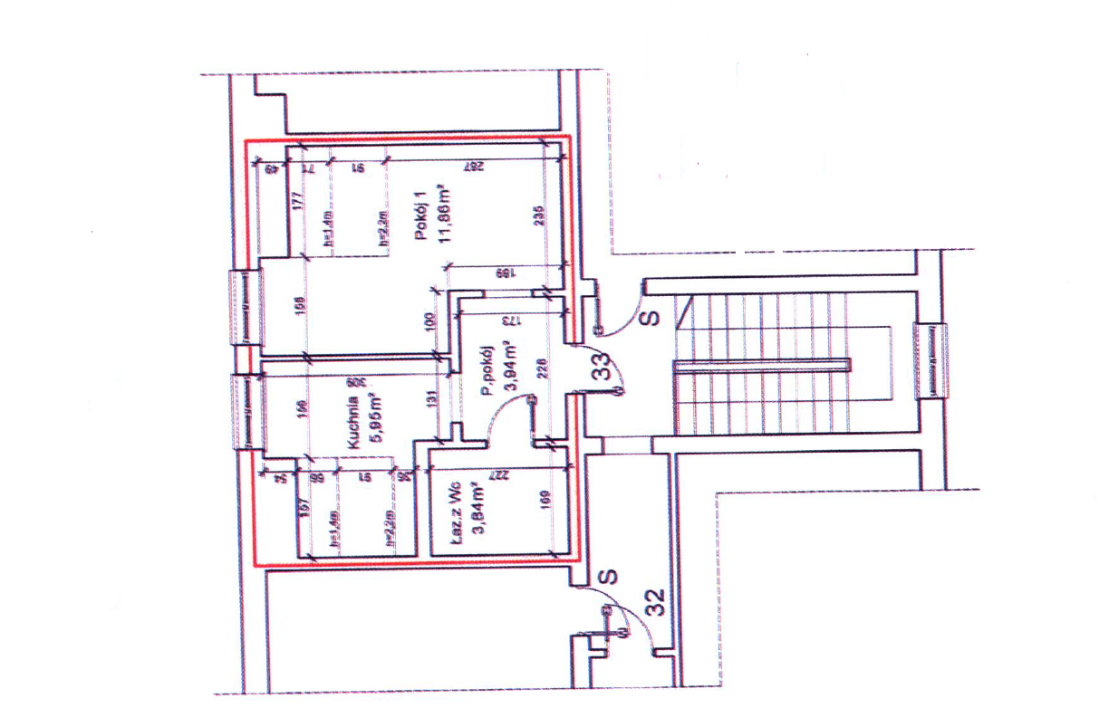
Prezydent Miasta Mysłowice ogłasza ustny przetarg nieograniczony na sprzedaż samodzielnego lokalu mieszkalnego nr 33, o pow. użytkowej 25,59 m2, stanowiącego własność Gminy Mysłowice, znajdującego się w wielorodzinnym budynku nr 14 przy ul. Armii Krajowej w Mysłowicach wraz z udziałem w nieruchomości wspólnej oraz sprzedażą ułamkowej części gruntu, obejmującym działkę oznaczoną numerem ewidencyjnym 6726/384 o pow. 1168 m2, arkusz mapy 3, obręb 0007 Mysłowice, zapisanego w księdze wieczystej KA1L/00009966/5. Niniejsza nieruchomość, którą zarządza Miejski Zarząd Gospodarki Komunalnej w Mysłowicach, stanowi samodzielny lokal mieszkalny i nie jest przedmiotem najmu, ani też umowy dzierżawy. Budynek w którym znajduje się przedmiotowy lokal jest obiektem o 4-kondygnacjach naziemnych oraz jednej podziemnej, podpiwniczonym, który wybudowany został w 1956 r. Lokal mieszkalny usytuowany jest na poddaszu, składa się z jednego pokoju, kuchni, przedpokoju i łazienki z wc. Lokal wyposażony jest w instalację: wodno-kanalizacyjną, energii elektrycznej i gazową, centralnego ogrzewania, ciepłej wody użytkowej oraz domofon. Z ww. nieruchomością związany jest udział wynoszący 203/10000 w części ułamkowej działki oznaczonej numerem ewidencyjnym 6726/384 o pow. 1168 m2 wraz z częściami wspólnymi budynku i urządzeniami, które nie służą wyłącznie do użytku właścicieli lokali. Standard i funkcjonalność lokalu mieszkalnego określono jako niski, wymaga remontu. Budynek posiada świadectwo charakterystyki energetycznej części budynku nr SCHE/16009/15/2023 z dnia 12.04.2023 r. zgodnie z którym ww. lokal posiada następujące wskaźniki charakterystyki energetycznej: a) wskaźnik rocznego zapotrzebowania na energię użytkową EU= 90,00 kWh(m2rok); b) wskaźnik rocznego zapotrzebowania na energię końcową EK= 140,31 kWh(m2rok); c) wskaźnik rocznego zapotrzebowania na nieodnawialną energię pierwotną EP= 112,24 kWh(m2rok); d) jednostkowa wielkość emisji CO2 Eco2= 0,04 tCO2/(m2 rok); e) udział odnawialnych źródeł energii w rocznym zapotrzebowaniu na energię końcową Uoze= 0,00%. Nabywca przejmie ww. nieruchomość lokalową w stanie istniejącym. Przedmiotowa nieruchomość znajduje się poza obszarem obowiązującego miejscowego planu zagospodarowania przestrzennego. W Studium Uwarunkowań i Kierunków Zagospodarowania Przestrzennego Miasta Mysłowice, przyjętym Uchwałą Rady Miasta Mysłowice nr L/761/21 z dnia 21 grudnia 2021 r. ww. działka pozostaje w strefie oznaczonej symbolem: MW – obszary zabudowy mieszkaniowej wielorodzinnej.
Cena wywoławcza nieruchomości wynosi 82.000,-zł
(słownie: osiemdziesiąt dwa tysiące złotych).
Przetarg jest ważny bez względu na liczbę jego uczestników, jeżeli przynajmniej jeden uczestnik przetargu zaoferuje co najmniej jedno postąpienie powyżej ceny wywoławczej nieruchomości. O wysokości postąpienia decydują uczestnicy przetargu z tym, że postąpienie w przetargu nie może wynosić mniej niż 1% ceny wywoławczej nieruchomości, z zaokrągleniem w górę do pełnych dziesiątek złotych. Cena osiągnięta w przetargu za nieruchomość podlega zapłacie w całości, nie później niż do dnia zawarcia umowy przenoszącej własność nieruchomości, gdzie za potwierdzenie wpłaty przyjmuje się datę uznania rachunku bankowego Urzędu Miasta Mysłowice, wskazanego w zawiadomieniu o miejscu i terminie zawarcia umowy sprzedaży. Sprzedaż nieruchomości może podlegać, zgodnie z przepisami, opodatkowaniu podatkiem VAT według stawki obowiązującej na dzień sprzedaży. Na dzień ogłaszania przetargu, sprzedaż nin. działki zwolniona jest od podatku VAT na podstawie art. 43 ust. 1 pkt. 10 ustawy z dnia 11 marca 2004 r. o podatku od towarów i usług (tekst jednolity Dz. U. z 2022 r. poz. 931 z późn. zm.), w związku art. 2 pkt. 33 tej ustawy.
Przetarg odbędzie się w dniu 12 września 2023 r. o godz. 11.00 w sali nr 204
Urzędu Miasta w Mysłowicach przy ul. Powstańców 1.
W przetargu mogą brać udział osoby, które najpóźniej do dnia 6 września 2023 r. wniosą wadium w pieniądzu w wysokości 16.400,-zł (słownie: szesnaście tysięcy czterysta złotych), wpłacając je na konto depozytowe Urzędu Miasta Mysłowice Nr 13 1050 1214 1000 0023 5654 6974 ING Bank Śląski, z oznaczeniem nieruchomości. Za datę wniesienia wadium uważa się datę wpływu środków pieniężnych na powyższy rachunek bankowy. Wadium wpłacone przez uczestnika przetargu, który przetarg wygra zostanie zaliczone na poczet ceny nabycia lokalu, w dniu zapłaty reszty ceny sprzedaży. Pozostałym uczestnikom przetargu wadium jest zwracane w terminie 3 dni od dnia zamknięcia przetargu (bez oprocentowania), na konto przez nich wskazane. Organizator przetargu jest obowiązany zawiadomić osobę ustaloną jako nabywca lokalu o miejscu i terminie zawarcia umowy sprzedaży, najpóźniej w ciągu 21 dni od dnia rozstrzygnięcia przetargu. Wyznaczony termin nie może być krótszy niż 7 dni od dnia doręczenia zawiadomienia. Jeżeli osoba ustalona jako nabywca lokalu nie przystąpi bez usprawiedliwienia do zawarcia umowy w miejscu i w terminie podanych w zawiadomieniu, organizator przetargu może odstąpić od zawarcia umowy, a wpłacone wadium nie podlega zwrotowi. Nabywca zobowiązany również będzie do poniesienia w całości kosztów notarialnych oraz kosztów i opłat sądowych związanych z nabyciem lokalu.
Przed otwarciem przetargu jego uczestnik winien przedłożyć Komisji Przetargowej:
-
Dowód wniesienia wadium (oryginał).
-
Dokument tożsamości.
-
Aktualny wypis lub zaświadczenie z właściwego rejestru wystawione nie wcześniej niż 6 miesięcy przed upływem terminu przetargu w przypadku, gdy nieruchomość będzie nabywana przez uczestnika przetargu w ramach prowadzonej działalności gospodarczej, a w przypadku wspólników spółek cywilnych także umowę spółki cywilnej.
-
Oryginał pełnomocnictwa potwierdzonego notarialnie, upoważniającego do działania na każdym etapie postępowania przetargowego, w przypadku osoby reprezentującej uczestnika przetargu.
-
Pisemną zgodę współmałżonka na odpłatne nabycie lokalu, w przypadku uczestnika przetargu zamierzającego samodzielnie licytować lokal nabywany do majątku wspólnego.
-
Oświadczenie, że oferent zapoznał się z dokumentacją zbywanego lokalu, jego stanem faktycznym i prawnym oraz z warunkami przetargu i przyjmuje je bez zastrzeżeń.
-
Oświadczenie, że oferent wyraża zgodę na przetwarzanie swoich danych osobowych, w tym również ich udostępnienie do publicznej wiadomości w zakresie zbycia przedmiotowego lokalu w drodze przetargu.
-
Numer i nazwę rachunku bankowego, na które zostanie zwrócone wadium, w przypadku nie wygrania przetargu.
Nabycie nieruchomości przez cudzoziemców może nastąpić w przypadku uzyskania zezwolenia ministra właściwego do spraw wewnętrznych, jeżeli wymagają tego przepisy ustawy z dnia 24 marca 1920 r. o nabywaniu nieruchomości przez cudzoziemców. Nabywca zobowiązany jest do ustalenia we własnym zakresie, czy nabycie nieruchomości będącej przedmiotem przetargu wymaga uzyskania zezwolenia.
Nabywca zobowiązany również będzie do poniesienia w całości kosztów notarialnych oraz kosztów i opłat sądowych związanych z nabyciem lokalu.
Treść nin. ogłoszenia dostępna jest na stronie internetowej w Biuletynie Informacji Publicznej, a także na tablicy ogłoszeń w siedzibie Urzędu Miasta Mysłowice przy ul. Powstańców 1 (na II piętrze) obok pok. 302. Szczegółowych informacji nt. przetargu można uzyskać w Wydziale Gospodarki Nieruchomościami tel. 32 31 71 236 (pok. 311), w którym znajduje się dokumentacja zbywanego lokalu. Lokal zostanie udostępniony do oględzin w terminie wcześniej uzgodnionym z Miejskim Zarządem Gospodarki Komunalnej przy ulicy Partyzantów 21 w Mysłowicach - adres mailowy: mzgk@mzgk.myslowice.pl.
Treść (77.92 KB)









